2-к, Военных Строителей, 12 корп. 11 Показать на карте
Гагаринский
Севастополь
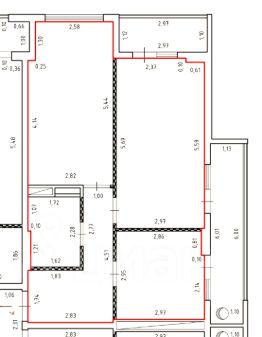
Двухкомнатная квартира 62,4 м2, на 9/10 этаже дома. Расположена в г. Севастополь, Гагаринский район, ул. Военных Строителей, д. 12/11. Квартира теплая и солнечная, с удобной практичной планировкой, подойдет для проживания, а также для сдачи в аренду. Позвоните нам, чтобы узнать все детали! Технические характеристики: -Адрес: г. Севастополь, Гагаринский район, ул. Военных Строителей, д. 12/11-Год постройки дома: 2024-Этаж/этажность: 9/10-Количество комнат: 2-Комнаты: изолированный/смежные-Общая площадь: 62,4 м2-Жилая площадь: 45,4 м2-Площадь кухни: 17 м2-Высота потолка: 2,6 м-Санузел: совмещенный-Водоснабжение: центральное-Горячее водоснабжение: АГВ-Отопление: АГВДополнительная информация: Квартира находится на девятом этаже десятиэтажного дома с шикарным панорамным видом на море. Общая площадь - 62.4 м2, кухни 17 м2, лоджия -6.3 м2, установлен двухконтурный газовый котел АГВ.Фacaд дома утeплeн и отдeлан пeнопластoм. Уcтановлены мeтaллоплacтикoвыe oкнa, вxодная желeзная двepь. Большaя блaгоуcтpоеннaя терpитоpия c дeтскими и спoртивными площадками, a также зонами отдыха для взрослых. Просторная парковка. Позвоните нам, чтобы назначить просмотр! Инфраструктура: Дом расположен в современном комплексе ЖК ''Скифия''. Это очень перспективный район, активно застраиваемый новыми жилыми комплексами и объектами инфраструктуры. Шаговая доступность к морю (бухты ''Голубая'' и ''Соленая'' в пяти минутах ходьбы). Транспортная развязка позволяет без труда доехать до любых районов города. Недалеко расположены детский сад и школа бухты Казачьей. Новые владельцы оценят шаговую доступность к морю и к остановке общественного транспорта, новую школу и детский сад. Также это прекрасный вариант в качестве высокорентабельной инвестиции. Подходит для наличного расчета. Документы РФ проверены юристами и готовы к сделке. Профессиональное сопровождение до получения права собственности.Добавьте предложение в закладки, чтобы не потерять! Для просмотра и получения дополнительной информации - звоните!
52 м2
9 / 10 этаж
Бетонные блоки
- Показать контакты
- Добавить в избранное
52 м2
9 / 10 этаж
Бетонные блоки
12 000 000
229 008 /м2
