2-к, Гоголя, 15 Показать на карте
Ленинский
Севастополь
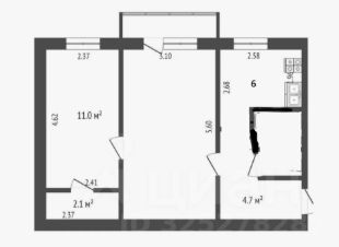
Двухкомнатная квартира 72.4 м2, на 3/6 этаже дома, с просторной кухней 12 м2. Расположена в г. Севастополь, Ленинский район, улица Гоголя, д. 15. Квартира теплая и солнечная, с удобной практичной планировкой, подойдет для проживания, а также для сдачи в аренду. Позвоните нам, чтобы узнать все детали! Технические характеристики: -Адрес: г Севастополь, Ленинский район, улица Гоголя, д. 15-Год постройки дома: 2025-Этаж/этажность: 3/6-Количество комнат: 2-Комнаты: изолированные-Общая площадь: 72.4 м2-Жилая площадь: 38.0 м2-Площадь кухни: 12.0 м2-Высота потолка: 2.8 м2-Водоснабжение: центральное-Горячее водоснабжение: АГВ-Отопление: АГВДополнительная информация: Продается двухкомнатная крупногабаритная квартира в центре Севастополя на ул. Гоголя 15. Отдельных слов заслуживает локация, квартира находится в центре Севастополя, недалеко от площади Ушакова рядом с Историческим Бульваром (это зеленый заповедник площадью 28 г и мемориальным комплексом) и центральных улиц Ленина и Большая Морская. Идеально подойдет, как для постоянного комфортного проживания, так и для сдачи в аренду. Позвоните нам, чтобы назначить просмотр! Инфраструктура: Дом расположен в районе с развитой инфраструктурой. . В шаговой доступности все социально значимые объекты, исторические памятники, парки, скверы, лучшие учебные заведения: гимназии: 1 и 3, школы: 44, 39, 14 и 45, школа МЧС, детские сады: 21, 22, 12, 14 и 2.Удобная транспортная развязка, остановки общественного транспорта в любые районы города. Подходит для наличного расчета, под ипотеку, материнский капитал, жилищные сертификаты. Документы РФ проверены юристами и готовы к сделке. Профессиональное сопровождение до получения права собственности.Добавьте предложение в закладки, чтобы не потерять! Для просмотра и получения дополнительной информации - звоните!
72 м2
3 / 6 этаж
Монолит
- Показать контакты
- Добавить в избранное
72 м2
3 / 6 этаж
Монолит
22 900 000
316 298 /м2
Новостройка,
дом сдан
дом сдан
