3-к, Музыки Николая, 25 Показать на карте
Ленинский
Севастополь
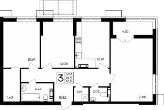
Трехкомнатная квартира 79 м2, на 6/10 этаже дома, с большой кухней-студией общей площадью 25 м2. Расположена в г. Севастополь, Ленинский район, ул. Николая Музыки, д. 25. Данный объект подойдет как для собственного проживания, так и в качестве высокорентабельной инвестиции. Позвоните нам, чтобы узнать все детали! Технические характеристики: -Адрес: г. Севастополь, Ленинский район, ул. Николая Музыки, д. 25-Год постройки дома: 2017 г.-Этаж/этажность: 6/10-Количество комнат: 3-Комнаты: изолированные-Общая площадь: 75 м2-Жилая площадь: 45 м2-Площадь кухни: 25 м2-Высота потолка: 2,8 м-Санузел: совмещенный-Водоснабжение: центральное-Горячее водоснабжение: АГВ-Отопление: АГВДополнительная информация: Прекрасная квартира с удобной планировкой, общей площадью с учетом балкона 79 м2 и собственным паркоместом в современном доме от ведущего застройщика. Возможно приобретение паркоместа отдельно (2млн.) Квартира находится на 6-ом этаже,по факту это 8-ой,так как на первом этаже расположены коммерческие помещения с различными магазинами и услугами.В квартире выполнен современный качественный ремонт. Мебель и техника остается по согласованию с собственником.Квартира светлая и очень уютная, дизайнерский ремонт сделан со вкусом. Все продумано до мелочей. Установлен двухконтурный газовый котел АГВ, позволяющий регулировать температуру в квартире, в зависимости от погодных условий, что существенно экономит расходы на оплату ЖКХ. Также, по квартире,где уложена плитка, установлены теплые водяные полы. Просторная кухня-студия со встроенной мебелью и техникой порадует любую хозяйку. Так же в ней вы сможете наслаждаться прекрасными закатами и видом на город.Два санузла (один гостевой,второй хозяйский совмещенный), установлена качественная сантехника.Вся квартира укомплектована мебелью,техникой, кондиционерами и всем необходимым для жизни. Большая гардеробная комната позволит вам разместить в ней все необходимое.В доме есть грузопассажирский лифт на 8 человек.Дом построен по самым современным нормам строительства: высота помещений 2.8 метра, вентилируемый фасад здания, подземный паркинг, детские площадки. Вход в паркинг изнутри подъезда на лифте. Позвоните нам, чтобы назначить просмотр! Инфраструктура: Новый современный ЖК ''Юбилейный'' находится рядом с центром Севастополя: до Исторического бульвара, Панорамы и площади Ушакова 10 минут пешком. Отличная транспортная развязка. Дорожная инфраструктура позволяет свободно, независимо от вида транспорта, добраться в любую точку города. Подходит для наличного расчета, под ипотеку, материнский капитал, жилищные сертификаты. Документы РФ проверены юристами и готовы к сделке. Профессиональное сопровождение до получения права собственности.Добавьте предложение в закладки, чтобы не потерять! Для просмотра и получения дополнительной информации - звоните!
79 м2
6 / 10 этаж
Панель
- Показать контакты
- Добавить в избранное
79 м2
6 / 10 этаж
Панель
19 990 000
253 038 /м2
