3-к, Толстого Льва, 62 Показать на карте
Ленинский
Севастополь
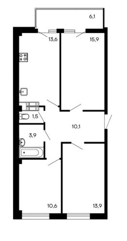
Продаётся уютная трёхкомнатная квартира в блочном доме по адресу: Севастополь, ул. Льва Толстого . Эта смежно-изолированная планировка отлично подходит как для семейного проживания, так и для инвестиций. Общая площадь квартиры составляет 56 квадратных метров, а жилая — 39, обеспечивая вам простор и комфорт. Санузел совмещен. Квартира требует ремонта, что даёт возможность создать интерьер по своему вкусу и стилю. . С балкона открывается вид на улицу и двор, что делает его прекрасным местом для отдыха и наслаждения свежим воздухом. Отличная локация: в шаговой доступности расположены остановки общественного транспорта, школы, детский сад, супермаркеты и рынок. Открытая парковка во дворе удобно дополнит ваш комфорт. Два взрослых собственника, что делает процесс продажи более простым и быстрым. Добавьте её в избранное, и возможно, это именно то место, где вы хотите начать новую жизнь. Не упустите возможность стать владельцем этого замечательного жилья! Звоните и записывайтесь на просмотр, чтобы лично оценить все преимущества этой квартиры.
56 м2
2 / 4 этаж
Бетонные блоки
- Показать контакты
- Добавить в избранное
56 м2
2 / 4 этаж
Бетонные блоки
9 100 000
162 500 /м2
