Дом, 2 Линия, 29 Показать на карте
Гагаринский
Севастополь
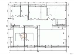
Дом 130 м² на участке 4 сотки СТ, одноэтажный. Расположен в г. Севастополь, Балаклавский район, СНТ Подорожник. Коммуникации: электричество, водоснабжение, отопление, газоснабжение, канализация, интернет.Позвоните нам, чтобы узнать все детали! Технические характеристики: -Одноэтажный дом, 2025 года постройки-Площадь: 130 м²-Высота потолка: 3,2 м-Ремонт: дизайнерский-Отопление: газовое-Электричество: 15 кВт-Водоснабжение: своя скважина-Газоснабжение: газгольдер-Канализация: заводской септик, двухконтурный-Сигнализация, интернет, спутниковое телевидениеПланировка дома: -Всего 1 этаж, 4 комнаты:-кухня-гостиная 35 м², спальня 15 м², гостевая спальня 15 м², детская спальня 14 м², санузел 8 м², тех помещение со вторым санузлом 4 м², прихожая 8 м², терраса 12 м².Планировка участка: -Участок 4 сотки, статус участка: СТ-Территория огорожена забором-Подъезд асфальтированныйНа этапе внутренней отделки дома можно выбрать дизайн и материалы для ремонта. Вам будут предложены различные варианты обоев, краски, плитки, сантехники и мебели. Вы сможете выбрать цвет стен, пола и потолка, а также выбрать мебель и технику для кухни и ванной комнаты. Также можно заказать индивидуальную мебель и декор для дома. Техника и мебель в стоимость не входит. При строительстве были соблюдены все нормативы СНИП: ленточный фундамент, армированные пояса, монолитный каркас, заполнение камнем газобетон. Дом утеплен пенопластом толщиной 5 см. Кровля - битумная черепица, 2-х слойная, кровельный утеплитель - стекловата 20 см. При строительстве дома денег не жалеют. Площадь участка позволяет разместить на нем зону отдыха, барбекю, небольшой сад или огород, бассейн с баней. Имеется 2 парко места под автомобили, установлены откатные ворота. Позвоните нам, чтобы назначить просмотр! Инфраструктура: Дом расположен в районе с развитой инфраструктурой. В шаговой доступности находятся магазины, школа, детский сад, поликлиника и другие объекты социальной инфраструктуры. Транспортная доступность позволяет быстро добраться до любого района города.Подходит для наличного расчета и под Семейную ипотеку.Документы РФ. Проверены юристами и готовы к сделке. Прямая продажа от Девелопера.Добавьте предложение в закладки, чтобы не потерять!
130 м2
1 этаж
- Показать контакты
- Добавить в избранное
130 м2
1 этаж
15 000 000
115 385 /м2
