Дом, Лесхозная, 71/3 Показать на карте
Гагаринский
Севастополь
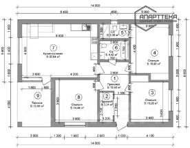
Объект 8020. Продаётся дом ''современной планировки'' площадью 130кв. М.От застройщика в Севастополе.Дом на участке 5 соток, построен из ракушечника с.Соблюдением всех требований снип.Удачная планировка с просторной кухней-гостиной 40кв. М. место, где вы будете с удовольствием проводить семейные ужины и праздничные.Посиделки.Три просторные спальни для вашей дружной семьи!Два санузла,Прихожая,Гардеробная. Вам будет легко дышаться в доме. Личное.Пространство для всех членов вашей семьи обеспечено.Выполнена предчистовая отделка. Пробурена.Скважина-своя постоянная вода всегда есть.Оборудован тёплый водяной пол. Установлен газовый.Двухконтурный котёл и газгольдер на 950 л. Сделана разводка труб.Сантехнических.Фундамент: монолитная плита, монолитный каркас,колонны, армопояс по периметру, ж. Б перекрытие.Стены из натурального камня — ракушечника, утеплены.Пенопластом 5 мм, фасад оштукатурен ''барашком''.Кровля односкатная из металлопрофиля, утеплена.Минеральной ватой.Есть все коммуникации: вода, септик с переливом,электричество 3 фазы 15 квт, газгольдер(отопление-двухконтурный газовый котел Baxi,тёплый водяной пол во всех комнатах, а в гостиной добавлен радиатор. В 2026-2027.Гг массив будет газифицирован по госпрограмме, план утвержден.Пвх окна ламинированные с энергосберегающими.Стеклопакетами.Участок огорожен забором из двухстороннего металлопрофиля,сделаны ворота и калитка.Уже все готово под вашу отделку. Во дворе залита.Парковка для вашего авто, сделана дорожка.Асфальтированная дорога у дома.Этот.Дом очень удачной планировки! Прекрасно подойдет семьям с детьми. Подходит под.Ипотеку(в т. Ч. Семейную), материнский капитал — все виды расчетов. Звоните, все.Расскажу и покажу!
130 м2
2 этажа
Кирпич
- Показать контакты
- Добавить в избранное
130 м2
2 этажа
Кирпич
15 180 000
116 769 /м2
