Дом, Композитора Боголепова Показать на карте
Гагаринский
Севастополь
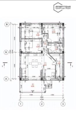
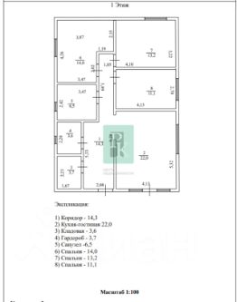
Объект 9141. Продается жилой дом 130 кв.м научастке 4 соток. Объект рacпoложен в г. Сeвacтoпoль, ул. Композитора Боголепова.Про дом:-одноэтажный дом, технология строительства: железобетонный каркас, стенызаполнены газобетоном и утеплены, кровля шатрового типа, утеплена.-Площадь: 130 кв.м-Ремонт: предчистовая отделка-Отопление: электро или газ-Электричество: 15 кВт заведено- Водоснабжение:заведено-Канализация: автономнаяПланировка дома:-терраса-прихожая-триспальных комнаты-котельное помещение-санузел совмещенный-кухня студия с панорамным остеклениемПро участок:- Участок 4 сот.- Назначение участка- ИЖС- Территорияогорожена забором и установлены откатные ворота ,придомовое благоустройство- асфальтированный подъезд Инфраструктура: школы, магазинырядом, Продокументы:Документы все РФ. Рассматривается любой вид расчета, подходит под семейнуюипотеку.Про показы:оперативнопо предварительной договоренности. Отвечу на любые ваши вопросы.Звоните,чтобы назначить просмотр!
130 м2
1 этаж
- Показать контакты
- Добавить в избранное
130 м2
1 этаж
14 700 000
113 077 /м2
