Дом, 2 Линия Показать на карте
Нахимовский
Севастополь
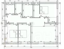
Объект 167. Хотите купить дом в Севастополе? Предлагается к продаже новый 2х-этажный дом у соснового бора по улице 2я Беговая.Общая площадь 185 м2, свободная планировка, видовой балкон 16 м2, открытая терраса 45 м2 дадут возможность воплотить в жизнь любые дизайнерские решения. Сколько комнат Вы хотите?Строился из современных качественных материалов: монолитный каркас на ленточном фундаменте, наполнение - экологичный ракушечник, сейсмоустойчивость 8 баллов, железобетонные перекрытия, фасад утеплен минеральной ватой, установлены энергосберегающие стеклопакеты под дерево, панорамное остекление.Состояние - под чистовую отделку, Вы сами решаете, как будет выглядеть Ваш дом, и сможете осуществить все свои желания в дизайне интерьера. А мы обеспечим Вас надежными специалистами: дизайнерами, отделочниками, сантехниками, электриками с гарантией качества ремонта ''под ключ'' и скидками на строительные материалы и работы.Коммуникации:- водоснабжение - подключено и заведено в дом- электричество - 15 кВт, подключено, разведено по дому- газ - подключен (газовый котел автономного отопления)- канализация - септикЗемельный участок 5 соток, ИЖС, ровный, правильной прямоугольной формы, огорожен стильным забором-жалюзи с откатными воротами.Отличное месторасположение, район активно развивается, рядом строятся: новый детский сад и школа, ледовый каток, в 100 метрах остановки общественного транспорта. Магазины, супермаркет, строительный гипермаркет, школы, детские садики в 10-15 минутах. До пляжей 20 минут на транспорте.Дом сдан, введен в эксплуатацию, присвоен адрес. Возможна регистрация по месту жительства. Продажа по договору купли-продажи жилого дома с земельным участком.Возможна рассрочка, ипотека, материнский капитал.Хотите узнать подробнее или посмотреть? Звоните, с радостью ответим на все вопросы и организуем просмотр в удобное для Вас время.
185 м2
2 этажа
- Показать контакты
- Добавить в избранное
185 м2
2 этажа
18 000 000
97 297 /м2
