Дом, Батумская, 41 Показать на карте
Ленинский
Севастополь
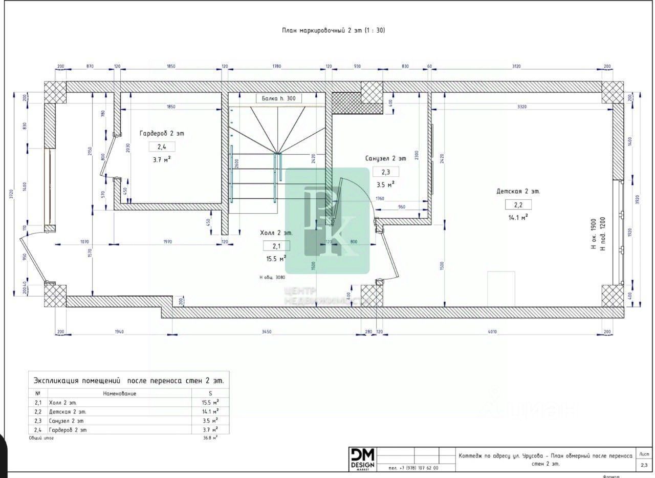
Объект 2787. Дом в самом центре Севастополя — когда всё рядомул. Батумская.Продаётся просторный дом в центральной части города, где действительно всё рядом и всё в шаговой доступности. Локация, в которой не нужно тратить время на дорогу — вы живёте в центре событий, но при этом на тихой улице.Идеальный вариант для большой, дружной семьи, которая ценит комфорт, пространство и удобство городской жизни.Основные характеристики:•Общая площадь дома — 270 м².•Участок — 3,5 сотки.•5 комнат + кухня-гостиная.•2 санузла.• Отдельно стоящий гараж на 2 автомобиля.Планировка по этажам: 1 этаж— Просторная кухня-гостиная для семейных ужинов и встреч с друзьями— гостевая комната— санузел 2 этаж— 3 раздельные спальни— санузел 3 этаж— Комната под спортзал(отлично подойдёт под детскую игровую или зону отдыха) Нижний уровень— Хозяйственные помещения. Коммуникации:•Электричество — 15 кВт.•Водоснабжение — городское.•Газификация — городская.•Водоотведение — городское.Главное преимущество — ЛОКАЦИЯ:•Центр города — всё буквально рядом.•Школы и детские сады — в нескольких минутах от дома.•Рынки, магазины, супермаркеты, рестораны, кафе — в пешей доступности.•Центральная набережная — всего 10 минут пешкомВы живёте там, где не нужно планировать дорогу — всё близко, удобно и под рукой. Это дом для тех, кто хочет максимум комфорта от жизни в центре Севастополя. Звоните, с удовольствием покажем дом и расскажем все детали.
270 м2
3 этажа
Монолит
- Показать контакты
- Добавить в избранное
270 м2
3 этажа
Монолит
49 000 000
181 481 /м2
