Дом, Черноморская Показать на карте
Ленинский
Севастополь
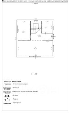
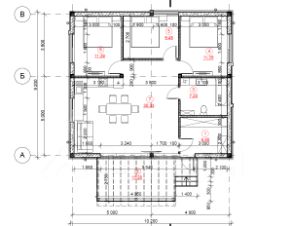
Объект 1771. ЭКСКЛЮЗИВ!Видовой дом в самом центре СевастополяРасположен по улице ЧерноморскаяДом новый 2023 года постройкиДвухэтажный общей площадь 237м2 +полноценный высокий цокольный этажНа первом этаже расположены: прихожая 14м2,очень вместительная гардеробная, просторная кухня 20,2 м2, раздельные сан узели ванная комната, и гостиная 30 м, которая позволит разместить большую дружнуюкомпаниюНа втором этаже расположены три большиекомнаты 26/22,5/21м2, сан узлы и открытая 10-метровая террасаПологая лестница будет безопасной длямаленьких деток и удобной для взрослых людейВысокий потолок создает еще большееощущение свободного пространстваИдеальная грамотная планировка дляпроживания большой семьи или просто для тех, кто любит простор и комфортПри строительстве использовались дорогие икачественные строительные материалыТолщина стен 50 см (40 см камень, минвата и вентилируемый фасад Docke Fels)Материал покрытия кровли модифицированнаямягкая черепица Roof Shield Премиум МодернОкна RehauIntellio 8 см с тонированными мульти-стеклопакетамии скрытой противовзломной фурнитуройВ доме постепенно выполняется ремонт, большая часть уже сделанаПлощадь земельного участка 5 соток. Категория земель земли населенныхпунктов, разрешенное использование индивидуальное жилищное строительствоВыполнено зонирование участкаДом расположен на возвышенности и имеетпотрясающие видовые характеристики он не оставит Вас равнодушным!Все коммуникации: городская вода, мощноеэлектричество, централизованный газ, автономная канализация - септикК дому широкий асфальтированный подъезд, аперед домом свободная территория - просторная площадка для паркинга на 3-4машины или можно облагородить ландшафтным дизайном на Ваш вкусМестоположение очень удачное - тихийчастный сектор в центре города с развитой инфраструктурой и прекраснойтранспортной доступностьюОбеспечиваем полное юридическоесопровождение без дополнительной комиссии для покупателяПодобные предложения крайне редко встречаются на рынке нашего города, не упустите возможность стать его счастливым обладателемЗвоните и записывайтесь на просмотр Вашеймечты!
237 м2
2 этажа
- Показать контакты
- Добавить в избранное
237 м2
2 этажа
45 000 000
189 474 /м2
