Дом, Камышовое шоссе, 68а Показать на карте
Гагаринский
Севастополь
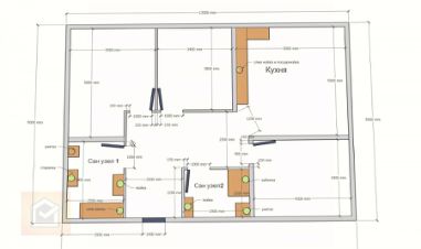
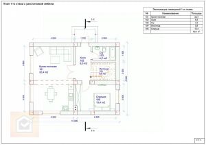
Дом 230 м² на участке 5 соток (ИЖС), двухэтажный. Расположен в г. Севастополь, Гагаринский район, Камышовое шоссе. Коммуникации: электричество, отопление, канализация, газ - тех.условия получены, осталось подключить.Позвоните нам, чтобы узнать все детали! Технические характеристики: -Двухэтажный дом из СИП-панелей, 2018 года постройки-Площадь: 230 м²-Высота потолка: 3 м-Ремонт: косметический-Отопление: подключено-Электричество: 15 кВт-Вода: городская-Газ: естьПланировка дома: -Всего 2 этажа, 10 комнат-Первый этаж-просторный коридор, кухня-гостиная, гардеробная, ванная комната, три жилые комнаты.-Второй этаж-имеет отдельный вход с улицы, коридор, три комнаты, кухня-гостиная, ванная комната.Также есть два отдельных входа в дом как со двора, так и с улицы в два помещения, оборудованные как квартиры , которые успешно сдаются в аренду. В них сделан ремонт, есть мебель и все удобства.Планировка участка: -Участок 5 соток, статус участка: ИЖС-Территория огорожена забором-Подъезд асфальтированныйРазрешенное использование: для строительства и обслуживания жилого дома, хозяйственных построек и сооружений (приусадебный участок).Участок имеет два входа, есть парковочное место.Имеются все документы на земельный участок и дом. Дом узаконен как жилой. Дом двухэтажный, готовый для проживания, продается с мебелью и техникой.Позвоните нам, чтобы назначить просмотр! Инфраструктура: Дом находится в черте города. Район Шевченко, напротив школы Экотех. В шаговой доступности школа, остановка, аптеки, магазины, детские учреждения, супермаркет Метро, пляжи, рынок.Подходит для наличного расчета и под ипотеку.Документы РФ. Проверены юристами и готовы к сделке.Профессиональное сопровождение до получения права собственности.Добавьте предложение в закладки, чтобы не потерять!
230 м2
2 этажа
- Показать контакты
- Добавить в избранное
230 м2
2 этажа
26 000 000
113 043 /м2
