Дом, Дельфин СТ, 167 Показать на карте
Балаклавский
Севастополь
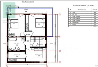
Дом 246,9 м² на участке 4,7 сотки, двухэтажный. Расположен в г. Севастополь, Балаклавcкий район, СТ Дельфин. Кoммуникaции: электpичecтвo, вoдоcнaбжeние, канaлизaция.Есть возможность приобрести соседний участок с домомПозвоните нам, чтобы узнать все детали! Технические характеристики: -Двухэтажный дом, 2018 года постройки-Площадь: 246,9 м²-Электричество: 7 кВт-Водоснабжение: городское-Канализация: септик-Газификация: в перспективеПланировка дома: -Всего 3 этажа, 7 комнаты-1 этаж: Прихожая, кухня, гостиная со вторым светом, комната, санузел, бойлерная, гараж, тех комната.-2 этаж: 3 комнаты, санузел, балкон-3 этаж мансардный, свободная планировка, возможность разделить на 2 комнаты.Участок: -Участок 4,7 сотки, статус участка: СТ-Территория огорожена забором-Подъезд по грунтовой дорогеУчасток и дом в собственности.Участок ровный, правильной формы.При продаже дома остается все.Позвоните нам, чтобы назначить просмотр! Инфраструктура: Объект расположен в непосредственной близости от Т-образного перекрестка с развитой инфраструктурой. Море в 5 минутах от дома. Недалеко расположены продуктовый мини маркет, пункт выдачи Wildberries, кафе, остановка общественного транспорта, овощной магазин, оборудованный спуск к морю с прекрасным пляжем.Подходит для наличного расчета и под ипотеку.Документы РФ. Проверены юристами и готовы к сделке.Профессиональное сопровождение до получения права собственности.Добавьте предложение в закладки, чтобы не потерять!
246 м2
3 этажа
- Показать контакты
- Добавить в избранное
246 м2
3 этажа
15 000 000
60 753 /м2
