2-к, Маячная, 16 Показать на карте
Гагаринский
Севастополь
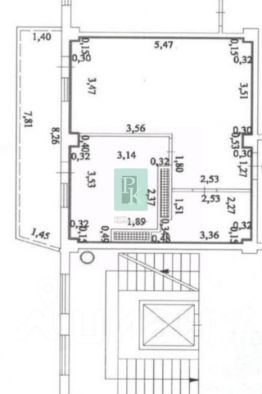
Двухкомнатная квартира 83,6 м2, на 6м этаже 11этажного дома. Объект расположен по адресу: г. Севастополь, Гагаринский район, улица Маячная, д. 16.Продаётся просторная двухкомнатная квартира в современном жилом комплексе с закрытой территорией — идеальное место для жизни у моря! Солнечная квартира с панорамными окнами, продуманной планировкой и близостью к лучшим местам отдыха Севастополя: пляжу ''Омега'' и Парку Победы.Звоните — организуем просмотр в удобное для вас время! Технические характеристики: -Адрес: г. Севастополь, Гагаринский район, улица Маячная, д. 16.-Год постройки дома: 2012.-Тип дома: монолитный (новостройка).-Этаж/этажность: 6/11.-Общая площадь: 83,6 м2-Жилая площадь: 58 м2-Площадь гостиной: 36 м2 (просторная комната).-Площадь кухни: 12,3 м2 (оборудована всем необходимым).-Высота потолков: 2,7 м.-Балкон: есть (в спальне — собственный балкон).-Санузел: совмещенный.-Горячее водоснабжение: АГВ.-Ремонт: косметический.-Окна: выходят на улицу и во двор, панорамные.-Планировка: изолированные комнаты.Преимущества квартиры: -просторная гостиная 36 м2 — идеальное пространство для отдыха и приёма гостей,-спальня с собственным балконом — дополнительное место для отдыха,-солнечная квартира с панорамными окнами — много естественного света,-пространство легко модернизируется под ваш вкус,-закрытая огороженная территория жилого комплекса — безопасность и комфорт (доступ с пульта),-возможность приобрести парковочное место за дополнительную плату (фото по запросу),-новостройка 2012 года — современные коммуникации и надёжность конструкции,-косметический ремонт — можно сразу заселяться или обновить интерьер по своему желанию. Добавьте предложение в закладки, чтобы не упустить отличный вариант в престижном районе Севастополя! Расположение и окружение: Квартира находится в Гагаринском районе Севастополя, рядом с ключевыми местами отдыха и инфраструктуры: -200 м до пляжа ''Омега'',-300 м до Парка Победы — аллеи парка ведут к морскому побережью,-летние кафе и аквапарк ''Зурбаган'' рядом с пляжем,-пятизвёздочные отели ''Аквамарин'' поблизости — престижность района,-остановка общественного транспорта в пешей доступности,-продуктовые магазины и аптеки рядом с домом,-развитая городская инфраструктура микрорайона. Подходит для наличного расчета, под ипотеку, материнский капитал, жилищные сертификаты. Документы РФ проверены юристами и готовы к сделке. Профессиональное сопровождение до получения права собственности.Добавьте предложение в закладки, чтобы не потерять! Для просмотра и получения дополнительной информации - звоните!
83 м2
6 / 11 этаж
Монолит
- Показать контакты
- Добавить в избранное
83 м2
6 / 11 этаж
Монолит
17 000 000
203 349 /м2
