4-к, Новороссийская, 50 Показать на карте
Ленинский
Севастополь
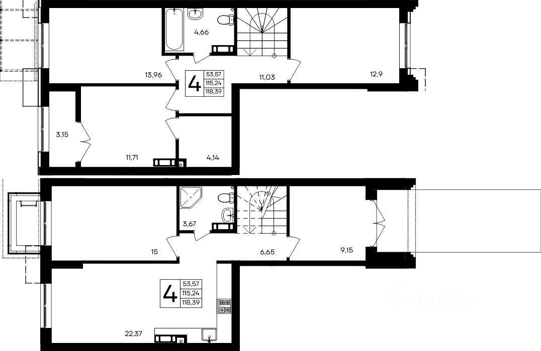
Четырехкомнатная квартира 140 м2, на 5/6 этаже дома, с просторной кухней-столовой 14,3 м2. Расположена в г. Севастополь, Ленинском районе, ул. Новороссийская д.50. Квартира теплая и солнечная, с удобной практичной планировкой, подойдет для проживания большой семьи, а также для сдачи в аренду. Позвоните нам, чтобы узнать все детали! Технические характеристики: -Адрес: г. Севастополь, Ленинский район, ул. Новороссийская д.50-Год постройки дома: 2009 г.-Этаж/этажность: 5/6-Количество комнат: 4-Комнаты: изолированные-Общая площадь: 140 м2-Жилая площадь: 78,7 м2-Комнаты: 10,1 м2, 31,2 м2, 22 м2, 15,4 м2-Площадь кухни-столовой: 14,3 м2-Высота потолка: 2,8 м-Санузел: совмещенный-Водоснабжение: центральное-Горячее водоснабжение: АГВ-Отопление: АГВДополнительная информация: Общая площадь квартиры составляет: 140 м2, жилая площадь: 78.7 м2, расположена на 5/6 этаже дома. Уникальность квартиры заключается в архитектурном решении самого дома и планировки. На первом уровне расположена кухня-столовая, площадью: 14,3 м2 с выходом на балкон, санузел: 2,9 м2, две комнаты: 10,1 м2 с гардеробной и 31,2м2, высота потолков первого уровня - 2.8 м. Попадая на второй уровень с коридора- выход в две изолированные комнаты, площадью: 22.0 м2 и 15.4 м2, а также есть ванная комната: 8 м2, с выходом на балкон. Особенностью этой квартиры является второй уровень с мансардными потолками, высота которых разнится от 2.7 м. до 4.8 метров, что создает впечатление частного дома и добавляет еще больше пространства. Горячее водоснабжение и отопление подается при помощи двухконтурного газового котла АГВ, что поможет значительно сэкономить на коммунальных платежах и самостоятельно регулировать отопительный сезон.Квартира полностью готова к проживанию, вся необходимая техника и мебель остается новым хозяевам. Дом оснащен: системами безопасности, бесшумный лифт, хорошие соседи - ваша семья будете в полной безопасности.Позвоните нам, чтобы назначить просмотр! Инфраструктура: Квартира расположена в самом центре города, в развитом районе со всей социально необходимой инфраструктурой, в пешей доступности размещено: находится перед домом остановка общественного транспорта, магазины, рынок, поликлиника, ТЦ и др. Подходит для наличного расчета, под ипотеку, материнский капитал, жилищные сертификаты. Документы РФ проверены юристами и готовы к сделке. Профессиональное сопровождение до получения права собственности.Добавьте предложение в закладки, чтобы не потерять!
140 м2
5 / 6 этаж
Бетонные блоки
- Показать контакты
- Добавить в избранное
140 м2
5 / 6 этаж
Бетонные блоки
37 000 000
264 286 /м2
