4-к, Степаняна, 2а корп. 2 Показать на карте
Гагаринский
Севастополь
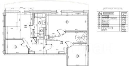
Двухуровневая четырехкомнатная квартира 101.2 м2, на 16/17 этаже дома, с просторной кухней 10 м2. Расположена в г. Севастополь, Гагаринский район, улица Степаняна, д 2а к 2. Данный объект подойдет как для собственного проживания, так и в качестве высокорентабельной инвестиции. Позвоните нам, чтобы узнать все детали! Технические характеристики: -Адрес: г Севастополь, Гагаринский район, улица Степаняна, д 2а к 2-Год постройки дома: 2020-Этаж/этажность: 16/17-Количество комнат: 4-Комнаты: изолированные-Общая площадь: 101.2 м2-Жилая площадь: 80 м2-Площадь кухни: 10 м2-Высота потолка: 3 м-Санузел: совмещенный-Водоснабжение: центральное-Горячее водоснабжение: бойлер-Отопление: центральноеДополнительная информация: Продаётся видовая двухуровневая четырехкомнатная квартира по адресу ул. Степаняна 2а к2. Подходит для наличного расчета, под ипотеку, материнский капитал, жилищные сертификаты. Общая площадь квартиры: 101.2 м2, жилая 80м2. Квартира имеет два уровня, на каждом из которых есть свой санузел, а также отдельная дверь. Это позволит Вам при необходимости разделить её на две двухкомнатные. Каждый уровень оборудован своим балконом, откуда вы сможете наслаждаться потрясающим видом на город, бухту и закаты.Позвоните нам, чтобы назначить просмотр! Инфраструктура: Дом находится в одном из самых востребованных районов города с развитой инфраструктурой. Рядом с домом остановка общественного транспорта, есть парковка. Дом расположен в зеленом районе, школа, детский садик рядом, Юмашевский рынок в 5 минутах ходьбы от дома. В пешей доступности располагается парк Победы, где Вы сможете прогуливаться с родными и наслаждаться городскими пляжами, посетить аквапарк ''Зурбаган'', а также SPA и фитнес комплексом Aqua Deluxe. Подходит для наличного расчета, под ипотеку, материнский капитал, жилищные сертификаты. Документы РФ проверены юристами и готовы к сделке. Профессиональное сопровождение до получения права собственности.Добавьте предложение в закладки, чтобы не потерять! Для просмотра и получения дополнительной информации - звоните!
102 м2
16 / 17 этаж
Монолит
- Показать контакты
- Добавить в избранное
102 м2
16 / 17 этаж
Монолит
20 600 000
200 780 /м2
