2-к квартира Показать на карте
Ленинский
Севастополь
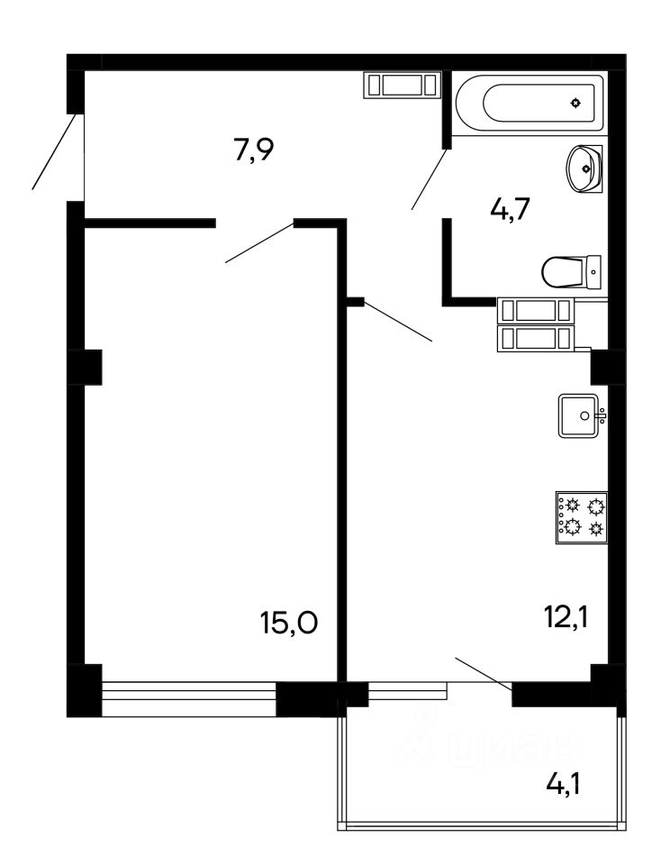
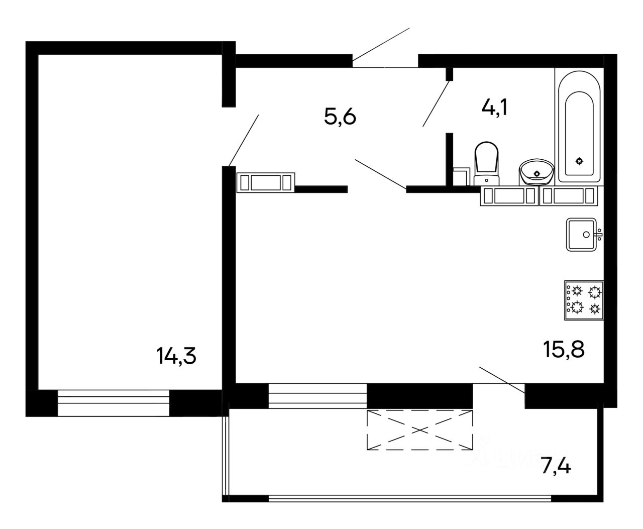
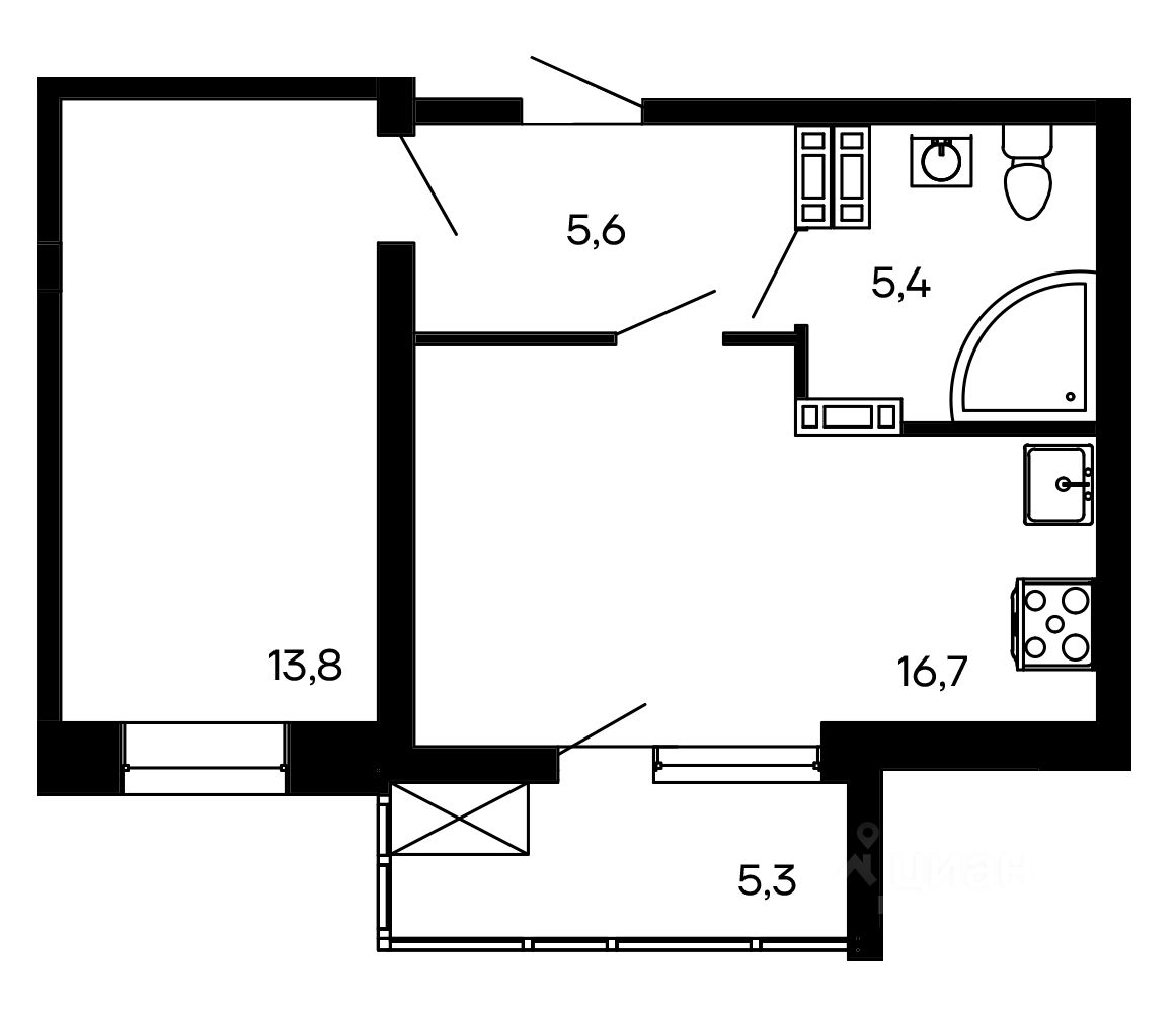
Продаётся 2-комнатная квартира в строящемся доме (8 этап. Дом 4), срок сдачи: I-кв. 2027, общей площадью 71.5 кв.м., на 1 этаже. Представляем Вам новый уникальный проект, получивший название - ЖК ''Доброгород''! Новый крупнейший микрорайон, который будет построен в рамках проекта по реновации промышленных территорий располагается на улице Токарева. Компания ''ИнтерСтрой'' стала первой в Севастополе и пятой в России, реализующей данный проект. Какие ассоциации у нас возникают при слове ''дом''? Теплота и уют, добро и любовь, забота и поддержка, вкусный чай и дружеские посиделки с друзьями, которые приходят к нам в гости. Звонкий смех и позитивные эмоции! Дом - это то место, Впервые наши покупатели смогут приобрести квартиры студии- самый востребованный в настоящий момент сегмент на рынке. Данный вид планировок сейчас не может предложить ни один застройщик в Севастополе. Жильё в новом микрорайоне станет доступнее для молодых семей. Кроме того, покупателям будут представлены просторные 2-3 комнатные квартиры с очень интересными и оригинальными планировками, дающими простор для воплощения в жизнь интерьера вашей мечты! За счёт собственных средств будет реализовано строительство детского сада и начальной школы. Мы позаботимся о новоселах ''Доброгорода'' - для комфортной жизни на первых этажах домов будут функционировать детские кружки, студии танцев, магазины, аптеки, стоматологии, салоны красоты. Важно! В Вашем новом доме будет действовать принцип ''двор без машин'': парковки будут располагаться исключительно по периметру домов, внутри дворового пространства будет расположена пешеходная зона для спокойных и безопасных прогулок. Общая жилая площадь ЖК ''Доброгород'' составит около 100 тысяч квадратных метров или 1979 квартир. ЖК ''Доброгород'' - не просто новый микрорайон. Это особая среда с цельной имиджевой составляющей, специально разработанным дизайном и цветовой гаммой. ''Доброгород'' - это семейный микрорайон с современными, теплыми и комфортными домами, идеальное место для жизни с семьей и встреч с друзьями. куда хочется возвращаться!
71 м2
1 / 9 этаж
Кирпич - монолит
- Показать контакты
- Добавить в избранное
71 м2
1 / 9 этаж
Кирпич - монолит
14 300 000
200 000 /м2
Новостройка,
I-2027
I-2027
