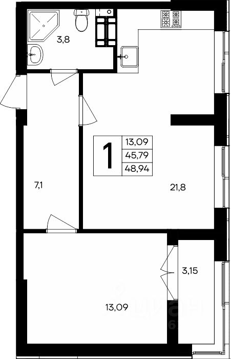
Продаётся 1-комнатная квартира в строящемся доме (Дом 6), срок сдачи: II-кв. 2028, общей площадью 48.94 кв.м., на 4 этаже. ''Семисчастье'' - город счастья.
Счастье - это когда дом наполнен детским смехом. Когда уютные вечера собирают всю семью за одним столом, а каждый день приносит радость. Это простые, но важные моменты, которые запоминаются на всю жизнь.
''Семисчастье'' - это место, где каждое мгновение имеет значение.
Первый проект подобного масштаба в Севастополе:
Амбициозный проект комплексного развития территории в районе 7 километра Балаклавского шоссе. Это район, вдохновляющий своим размахом.
70+ гектаров территории7 000+ квартир комфорт-класса54 многоквартирных дома и 41 таунхаус3 жилых квартала






