Если цена в объявлении изменится, мы сразу сообщим вам об этом на электронную почту.
Нажимая «Подписаться», вы соглашаетесь с правилами.
продам 3-к, Маячная, 5021 500 000 ₽
19 ноя
Дата публикации объявления
Обн. сегодня
Дата обновления объявления
7
Количество просмотров (+ просмотры за сегодня)
202 830 ₽/м²
Чистая продажа
Термин "Чистая продажа" означает, что в квартире никто не прописан или
есть куда выписаться и вывезти вещи. Это лучший вариант для покупателя.
Вероятность срыва сделки минимальна.
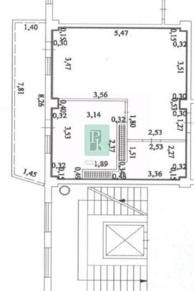
Трехкомнатная квартира 106 м2, на 9/9 этаже дома в большой кухней 26 м2. Расположена в г. Севастополь, Гагаринский район, ул. Маячная, д. 50. Данный объект подойдет как для собственного проживания, так и в качестве высокорентабельной инвестиции. Позвоните нам, чтобы узнать все детали! Технические характеристики: -
-Адрес: г. Севастополь, Гагаринский район, ул. Маячная, д. 50 -Год постройки дома: 2014 - Этаж/этажность: 9/9 - Количество комнат: 3 - Комнаты: изолированные -Общая площадь: 106 м2 - Жилая площадь: 74,5 м2 - Площадь кухни: 26 м2 - Высота потолка: 2,9 м - Санузел: 2 шт.
Трехкомнатная квартира 106 м2, на 9/9 этаже дома в большой кухней 26 м2. Расположена в г. Севастополь, Гагаринский район, ул. Маячная, д. 50. Данный объект подойдет как для собственного проживания, так и в качестве высокорентабельной инвестиции. Позвоните нам, чтобы узнать все детали! Технические характеристики: -
-Адрес: г. Севастополь, Гагаринский район, ул. Маячная, д. 50 -Год постройки дома: 2014 - Этаж/этажность: 9/9 - Количество комнат: 3 - Комнаты: изолированные -Общая площадь: 106 м2 - Жилая площадь: 74,5 м2 - Площадь кухни: 26 м2 - Высота потолка: 2,9 м - Санузел: 2 шт.,совмещенные - Водоснабжение: АГВ - Отопление: АГВ Дополнительная информация: В квартире выполнен качественный ремонт, дополняет интерьер встроенная мебель и бытовая техника лучших мировых производителей. Наличие охраны сделает ваше проживание спокойным и безопасным, есть место для парковки, оборудована отличная детская площадка внутри двора. В проекте города живописный парк. Квартира светлая, теплая имеет большую лоджию с видом на море. Установлены стеклопакеты, на окнах, и на балконах. В квартире практически все остается! Инфраструктура: Рядом с домом вся необходимая социально развитая инфраструктура: школа: 54, 58, 49, детский сад: 130, 133, .131, супермаркет ПУД, Фреш, мини маркет, остановка в шаговой доступности, аптеки, поликлиника. Подходит для наличного расчета, под ипотеку, материнский капитал, жилищные сертификаты. Документы РФ проверены юристами и готовы к сделке. Профессиональное сопровождение до получения права собственности. Добавьте предложение в закладки, чтобы не потерять! Звоните.