Если цена в объявлении изменится, мы сразу сообщим вам об этом на электронную почту.
Нажимая «Подписаться», вы соглашаетесь с правилами.
продам 2-к квартира11 299 000 ₽
13 окт
Дата публикации объявления
Обн. вчера
Дата обновления объявления
7
Количество просмотров (+ просмотры за сегодня)
Спецпредложение
Турбо x8
192 487 ₽/м²
Чистая продажа
Термин "Чистая продажа" означает, что в квартире никто не прописан или
есть куда выписаться и вывезти вещи. Это лучший вариант для покупателя.
Вероятность срыва сделки минимальна.
Квартира
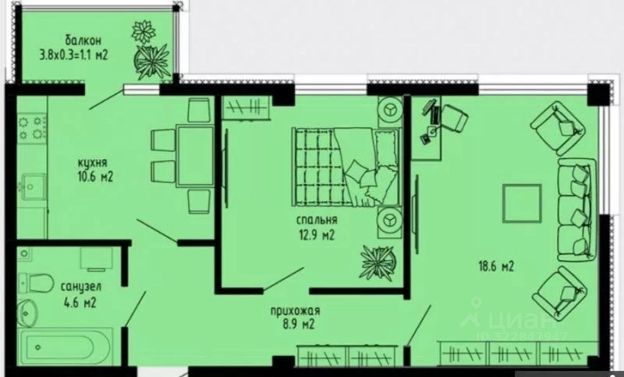
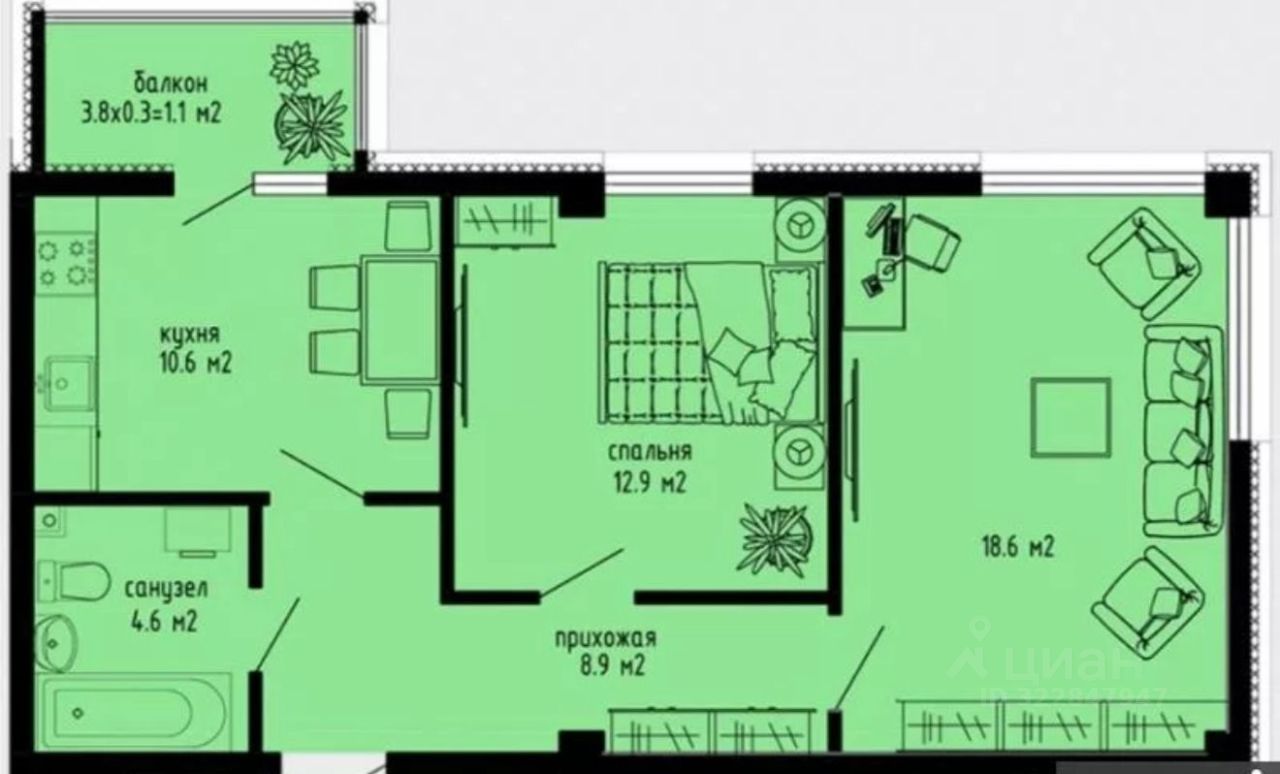
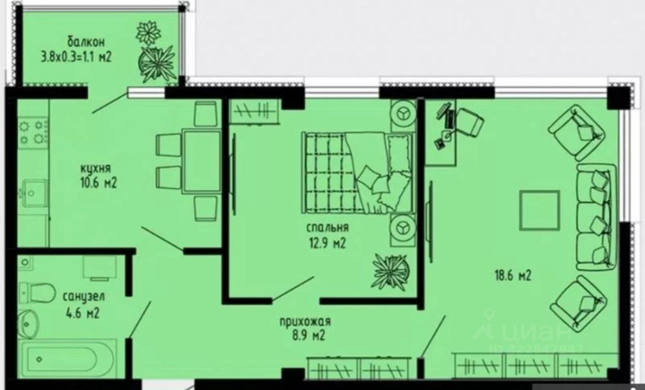
Общая площадь58,7 м2
Жилая площадь31,5 м2
Кухня11,5 м2
Количество балконов1
Тип собственностидругое (укажите в описании)
Дом
Срок сдачи1 кв. 2027 г.
Этаж9 из 9
Материал домамонолит
Продам квартиру-студию в ЖК ДОБРОГОРОД!
Крупнейший в Севастополе семейный микрорайон Доброгород!
ЛУЧШИЕ ВИДОВЫЕ ХАРАКТЕРИСТИКИ КВАРТИРЫ !!! ВИД НА МОРЕ !!!
Победитель всероссийской премии ТОП ЖК 2021 в номинации Лучший жилой комплекс! Отличная планировка ! Общая площадь квартиры 58,7 кв.м., состоит из комнаты 18,6 кв.м. и 13 кв.м., кухни 11,5 кв.м., санузла 3,8 кв.м., коридора 8,1 м2 и лоджии 3,8 кв.м.
Комплекс отапливается за счёт собственной котельной, также большим преимуществом является установленный индивидуальный теплосчётчик для каждой квартиры.
Продам квартиру-студию в ЖК ДОБРОГОРОД!
Крупнейший в Севастополе семейный микрорайон Доброгород!
ЛУЧШИЕ ВИДОВЫЕ ХАРАКТЕРИСТИКИ КВАРТИРЫ !!! ВИД НА МОРЕ !!!
Победитель всероссийской премии ТОП ЖК 2021 в номинации Лучший жилой комплекс! Отличная планировка ! Общая площадь квартиры 58,7 кв.м., состоит из комнаты 18,6 кв.м. и 13 кв.м., кухни 11,5 кв.м., санузла 3,8 кв.м., коридора 8,1 м2 и лоджии 3,8 кв.м.
Комплекс отапливается за счёт собственной котельной, также большим преимуществом является установленный индивидуальный теплосчётчик для каждой квартиры. Действующая собственная ШКОЛА и детский сад, парковки по системе двор без машин, ландшафтное озеленение территории, умный свет по всей территории комплекса и придомовое видеонаблюдение, колясочные на первых этажах, детские площадки, зонированные по возрастам, велосипедные дорожки, зоны отдыха, множество профильных магазинов и организаций, удобная транспортная развязка сделали этот семейный микрорайон лучшим в городе!
ИНФРАСТРУКТУРА Выгодное расположение ЖК позволяет его жителям быстро и удобно добраться в любой конец города. Расстояние на машине до важнейших точек Севастополя: — железнодорожный и автовокзалы 11 минут — центр города (набережная) 14 минут — ТЦ Sea mall 12 минут — ТЦ Муссон 10 минут — Парк Победы 20 минут. Вся необходимая для комфортной жизни инфраструктура в шаговой доступности: детский сад на 220 мест и начальной школы на 240 мест. Аптека, медицинский центр, и, конечно, Ваши любимые магазины и кафетерии теперь буквально в шаге от Вашего дома.
Семейный квартал Доброгород это новое слово в организации жилого пространства. Не упустите возможность стать владельцем новой квартиры в Севастополе и наслаждаться территорией комфортной жизни!
Прекрасная планировка и возможность сделать ремонт по своему вкусу сделают Вашу квартиру особенной и комфортной для проживания. НА КОМПЛЕКСЕ ВЫСОКАЯ ПЛАТА ЗА АРЕНДУ, поэтому это предложение может быть отличной инвестицией! А также идеально подойдет для личного проживания! Звоните! Организую оперативный показ в удобное для Вас время!
Переуступка по ДДУ , один собственник, документы к сделке готовы! Рассмотрим покупку с ИСПОЛЬЗОВАНИЕМ МАТКАПИТАЛА !