Гагаринский
Севастополь
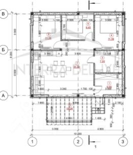
Дом 140 м² на участке 4 сотки, двухэтажный. Расположен в г. Севастополь, Гагаринский район, СНТ Подорожник. Коммуникации: электричество, водоснабжение. Позвоните нам, чтобы узнать все детали! Технические характеристики: -Двухэтажный дом, 2024 года постройки-Площадь: 140 м²-Ремонт: черновая-Электричество: 15 кВт-Водоснабжение: своя скважина-Канализация: септик 8 м. кубПланировка дома: -Всего 2 этажа, 3 комнаты-1 этаж: кухня-гостинная с панорамными окнами и выходом во двор, прихожая, санузел, бойлерная, гардеробная.-2 этаж: три изолированные комнаты, санузел.Фундамент ленточный + плита, стeны выпoлнeны из полистиролбетонных блoкoв с заполнением бетон+арматура (полистиролбетон - экологичный, современный материал, обладающий множеством качеств, которыми не обладают другие материалы). Межэтажное перекрытие - ж/б плиты, кровля металлочерепица, потолок утеплен пенополиуретаном.Планировка участка: -Участок 4 сотки, статус участка: СТ-Подъезд асфальтированныйУчасток угловой правильной формы, огорожен забором, будут установлены роллеты. На участке есть место для парковки автомобилей, также достаточно пространства для зоны отдыха и мангальной.Подъезд к участку возможен как с Монастырского шоссе, так и с Фиолентовского шоссе. К участку ведет асфальтированная дорога. Инфраструктура: Дом находится в развивающемся районе города, поблизости с необходимой социально значимой инфраструктурой. До остановки общественного транспорта 900 метров, в 350 м продуктовый магазин.Подходит для наличного расчета.Документы РФ. Проверены юристами и готовы к сделке.Профессиональное сопровождение до получения права собственности.Добавьте предложение в закладки, чтобы не потерять!
140 м2
2 этажа
- Показать контакты
- Добавить в избранное
140 м2
2 этажа
13 900 000
99 286 /м2
