1-к, Корчагина Павла, 23 Показать на карте
Гагаринский
Севастополь
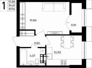
Однокомнатная квартира 34.9 м2, на 6/10 этаже дома с просторной кухней 8.8 м2. Расположена в г. Севастополь, Гагаринский район, ул. Павла Корчагина, д. 23.Позвоните нам, чтобы узнать все детали! Технические характеристики: -Адрес: г. Севастополь, Гагаринский район, ул. Павла Корчагина, д. 23-Год постройки дома: 2023-Этаж/этажность: 6/10-Количество комнат: 1-Общая площадь: 34.9 м2-Жилая площадь: 18 м2-Площадь кухни: 8.8 м2-Высота потолка: 2,7 м-Санузел: совмещенный-Водоснабжение: центральное-Горячее водоснабжение: АГВ-Отопление: АГВДополнительная информация: Однокомнатная квартира в черновой отделке. Просторная и светлая, окна выходят во двор.Общая площадь квартиры - 34.9 м.кв. Просторная светлая комната 18 м2. Кухня правильной геометрической формы - 8.8 м2. Санузел совместный. Большой балкон с панорамным видом.В квартире автономное газовое отоплениеТакже залита стяжка по всей квартире, что значительно снижает расходы на ремонт.Новый жилой комплекс ''Апельсин'' расположен по улице Павла Корчагина в 10 минутах от моря.Дизайн дома в едином стиле с соседними объектами, но обладает своими уникальными особенностями. Подъезд дома в идеальном состоянии, что делает входную группу чистой и опрятной.Позвоните нам, чтобы назначить просмотр! Инфраструктура: В районе жилого комплекса располагаются удобные транспортные развязки, остановки общественного транспорта, магазины, банки, аптеки. Рядом находятся социальные объекты - школа и детский сад.Возле жилого комплекса расположен ''Динопарк'' с площадками для активного отдыха. Рядом расположен Культурно-информационный центр, куда регулярно приезжают с гастролями российские звезды. В пяти минутах ходьбы от объекта находится крупный торговый центр ''Апельсин'' со множеством магазинов и одним из самых популярных кинотеатров города.Неподалеку от ЖК ''Апельсин'' расположен популярный галечный пляж Севастополя ''Адмиральская лагуна''. Дорога к нему проходит мимо новых уютных парков и современных жилых домов и занимает всего несколько минут. Подходит для наличного расчета, под гражданскую ипотеку, материнский капитал, жилищные сертификаты. Документы РФ проверены юристами и готовы к сделке. Профессиональное сопровождение до получения права собственности.Добавьте предложение в закладки, чтобы не потерять!
34 м2
6 / 10 этаж
Панель
- Показать контакты
- Добавить в избранное
34 м2
6 / 10 этаж
Панель
8 150 000
233 524 /м2
