logo
N1.RU — новая улучшенная версия Е1.Недвижимость
Чтобы вернуться на старый сайт Е1.Недвижимость, перейдите по ссылке в нижней части сайта N1.RU
  • Продажа
  • Аренда
  • Новостройки
  • Журнал
  • Компании
  • Шаблоны документов
  • Налоговый вычет
  • Еще
  • Личный кабинет
    • Регистрация на Циан
    • Севастополь
  • Добавить объявление
Тип недвижимости
Севастополь
Начните вводить или выберите объект в выпадающем списке
  • Район и микрорайон
Количество комнат
Цена
  1. Недвижимость в Севастополе
  2. Продажа
  3. Квартиры
  4. 668 объявлений

Продажа квартир в Севастополе

  • Новостройки668
  • Без посредников2
За все время
Сортировка по умолчанию
СпискомСписком
ТаблицейТаблицей
На картеНа карте
Открыть поиск по карте

По вашему запросу объявлений не найдено

1/27
1-к, Братьев Манганари, 28 Показать на карте
Гагаринский
Севастополь
Однокомнатная квартира в НОВОМ ДОМЕ у моря!Двухконтурный газовый котёл!Уникальная планировка!Один из самых востребованных ЖК в СевастополеОбщая площадь 42 кв. м.Кухня 16 кв. м.Комната 10 кв. м.Прихожая 4.5 кв. м.Ванная комната 4.5 кв. м.Гардеробная 3 кв. м.Лоджия 4 кв. м.Продуманное планировочное решение, кухня гостиная, гардеробная, правильной формы комната, большая лоджия! Такие планировки сложно найти!''Pоrtо Frаnco'' (Пopтo Фpaнкo) — первый жилой кoмплeкс в Ceвастoпoле с coбcтвeннoй нaбepeжной и инфраcтpуктуpой Аll-IN- One.- Пpямой выход к морю — 4 минуты пешком дo мoря.- Coбственная нaбеpeжнaя у дoма.- Kоммеpчeская инфpacтруктура внутри жилого комплекса.- Современные детские и спортивные площадки.- Наземные парковки. Рядом новая школа с бассейном, детский сад, новая поликлиника для взрослых и детей, различные развивающие и спортивные секции, аптеки, магазины, ''Фермерская'' ярмарка.В 10 минутах езды: Парк Победы, кинотеатры ''Апельсин'' и ''Мир кино'', ТЦ ''Апельсин'' и гипермаркет ''Метrо''. Хорошая транспортная доступность: 2 минуты до остановки общественного транспорта, 20 минут до центра города на авто. О проекте.- Монолитно-каркасные дома.- Скоростные лифты (1,6 м/с).- Индивидуальное газовое отопление! — Тепло-шумоизоляция лоджий.- Высота потолков — 2.7 м.- Панорамные застекленные лоджии.- Увеличенные оконные проёмы .- Полезные квадратные метры — гардеробные и ниши под системы хранения.Звоните! Договоримся о просмотре!Номер объекта: #1/559087/19843
42 м2
4 / 9 этаж
Бетонные блоки
  • Показать контакты
  • Добавить в избранное
42 м2
4 / 9 этаж
Бетонные блоки
6 990 000 
166 429 /м2
Новостройка,
дом сдан
    1/8
    1-к квартира Показать на карте
    Гагаринский
    Севастополь
    Продаётся 1-комнатная квартира в строящемся доме (Дом 1, литера г), срок сдачи: IV-кв. 2027, общей площадью 47.7 кв.м., на 5 этаже. Квартира в жилом комплексе Дом на Маячной'' - это ваша возможность не выбирать между морем и активной жизнью, а брать все лучшее сразу. Жилой комплекс ''Дом на Маячной'' имеет прекрасное расположение, где близость моря сочетается с развитой инфраструктурой района. Каждый день вы будете дышать морским воздухом, находясь в самом эпицентре событий. Инновационный подход к архитектуре и строительству Использование только современных и качественных материаловИзысканные архитектурные решенияДизайнерские, эргономичные и вентилируемые фасады, которые отлично вписываются в прибрежный ландшафтУдобные планировки: это просторные кухни и гостиные, тихие спальни, большие окнаДля сохранения пространства квартиры предусмотрены отдельные кладовыеДизайнерские холлыДинамичный район Гагаринский район, где располагается жилой комплекс, лучший в городе. Тут есть все для идеального отдыха и комфортной жизни: самый большой зеленый оазис в городе - Парк Победы'', он просто создан для неспешных прогулок и утренних пробежекмного небольших уютных скверов и мест для отдыха, где вы сможете безопасно провести время с детьмипрекрасно оборудованные песчаные и галечные пляжи - тут вы сможете найти чем заняться в любое время годакрасивые набережные Парка Победы и Аквамарина созданы для того, чтобы любоваться закатамиТранспорт до ближайшей остановки общественного транспорта - всего несколько минут пешкоммаксимально комфортное передвижение на личном автомобиле - удобные транспортные развязки, новые дороги и места для парковкиоборудованы точки проката электросамокатовИнфраструктура район насыщен кафе, ресторанами, магазинами, аптеками и другими сервисамикрупные торговые центры с кинотеатрами и детскими зонами помогут вам организовать отдых для всей семьиСпа-центры, бассейны, тренажерные залы и стадионы для занятий спортомдетские сады, новые школы, широкий выбор спортивных секций и творческих студий - все в одном районе - вы сможете провести с детьми больше времени, не потратив его на дорогудля активного отдыха рядом есть современный скейт-парк, аквапарк Зурбаган'', яхт-клубы, сапсерфинг, организованные велосипедные и беговые дорожки.
    47 м2
    5 / 8 этаж
    Кирпич - монолит
    • Показать контакты
    • Добавить в избранное
    47 м2
    5 / 8 этаж
    Кирпич - монолит
    16 695 000 
    350 000 /м2
    Новостройка,
    IV-2027
    1/8
    1-к квартира Показать на карте
    Гагаринский
    Севастополь
    Продаётся 1-комнатная квартира в строящемся доме (Дом 1, литера г), срок сдачи: IV-кв. 2027, общей площадью 47.7 кв.м., на 5 этаже. Квартира в жилом комплексе Дом на Маячной'' - это ваша возможность не выбирать между морем и активной жизнью, а брать все лучшее сразу. Жилой комплекс ''Дом на Маячной'' имеет прекрасное расположение, где близость моря сочетается с развитой инфраструктурой района. Каждый день вы будете дышать морским воздухом, находясь в самом эпицентре событий. Инновационный подход к архитектуре и строительству Использование только современных и качественных материаловИзысканные архитектурные решенияДизайнерские, эргономичные и вентилируемые фасады, которые отлично вписываются в прибрежный ландшафтУдобные планировки: это просторные кухни и гостиные, тихие спальни, большие окнаДля сохранения пространства квартиры предусмотрены отдельные кладовыеДизайнерские холлыДинамичный район Гагаринский район, где располагается жилой комплекс, лучший в городе. Тут есть все для идеального отдыха и комфортной жизни: самый большой зеленый оазис в городе - Парк Победы'', он просто создан для неспешных прогулок и утренних пробежекмного небольших уютных скверов и мест для отдыха, где вы сможете безопасно провести время с детьмипрекрасно оборудованные песчаные и галечные пляжи - тут вы сможете найти чем заняться в любое время годакрасивые набережные Парка Победы и Аквамарина созданы для того, чтобы любоваться закатамиТранспорт до ближайшей остановки общественного транспорта - всего несколько минут пешкоммаксимально комфортное передвижение на личном автомобиле - удобные транспортные развязки, новые дороги и места для парковкиоборудованы точки проката электросамокатовИнфраструктура район насыщен кафе, ресторанами, магазинами, аптеками и другими сервисамикрупные торговые центры с кинотеатрами и детскими зонами помогут вам организовать отдых для всей семьиСпа-центры, бассейны, тренажерные залы и стадионы для занятий спортомдетские сады, новые школы, широкий выбор спортивных секций и творческих студий - все в одном районе - вы сможете провести с детьми больше времени, не потратив его на дорогудля активного отдыха рядом есть современный скейт-парк, аквапарк Зурбаган'', яхт-клубы, сапсерфинг, организованные велосипедные и беговые дорожки.
    47 м2
    5 / 8 этаж
    Кирпич - монолит
    • Показать контакты
    • Добавить в избранное
    47 м2
    5 / 8 этаж
    Кирпич - монолит
    16 695 000 
    350 000 /м2
    Новостройка,
    IV-2027
    1/5
    3-к квартира Показать на карте
    Ленинский
    Севастополь
    Продаётся 3-комнатная квартира в строящемся доме (8 этап. Дом 3), срок сдачи: I-кв. 2027, общей площадью 76.6 кв.м., на 4 этаже. Представляем Вам новый уникальный проект, получивший название - ЖК ''Доброгород''! Новый крупнейший микрорайон, который будет построен в рамках проекта по реновации промышленных территорий располагается на улице Токарева. Компания ''ИнтерСтрой'' стала первой в Севастополе и пятой в России, реализующей данный проект. Какие ассоциации у нас возникают при слове ''дом''? Теплота и уют, добро и любовь, забота и поддержка, вкусный чай и дружеские посиделки с друзьями, которые приходят к нам в гости. Звонкий смех и позитивные эмоции! Дом - это то место, Впервые наши покупатели смогут приобрести квартиры студии- самый востребованный в настоящий момент сегмент на рынке. Данный вид планировок сейчас не может предложить ни один застройщик в Севастополе. Жильё в новом микрорайоне станет доступнее для молодых семей. Кроме того, покупателям будут представлены просторные 2-3 комнатные квартиры с очень интересными и оригинальными планировками, дающими простор для воплощения в жизнь интерьера вашей мечты! За счёт собственных средств будет реализовано строительство детского сада и начальной школы. Мы позаботимся о новоселах ''Доброгорода'' - для комфортной жизни на первых этажах домов будут функционировать детские кружки, студии танцев, магазины, аптеки, стоматологии, салоны красоты. Важно! В Вашем новом доме будет действовать принцип ''двор без машин'': парковки будут располагаться исключительно по периметру домов, внутри дворового пространства будет расположена пешеходная зона для спокойных и безопасных прогулок. Общая жилая площадь ЖК ''Доброгород'' составит около 100 тысяч квадратных метров или 1979 квартир. ЖК ''Доброгород'' - не просто новый микрорайон. Это особая среда с цельной имиджевой составляющей, специально разработанным дизайном и цветовой гаммой. ''Доброгород'' - это семейный микрорайон с современными, теплыми и комфортными домами, идеальное место для жизни с семьей и встреч с друзьями. куда хочется возвращаться!
    76 м2
    4 / 9 этаж
    Кирпич - монолит
    • Показать контакты
    • Добавить в избранное
    76 м2
    4 / 9 этаж
    Кирпич - монолит
    15 320 000 
    200 000 /м2
    Новостройка,
    I-2027
    1/5
    2-к квартира Показать на карте
    Ленинский
    Севастополь
    Продаётся 2-комнатная квартира в строящемся доме (8 этап. Дом 4), срок сдачи: I-кв. 2027, общей площадью 62.9 кв.м., на 1 этаже. Представляем Вам новый уникальный проект, получивший название - ЖК ''Доброгород''! Новый крупнейший микрорайон, который будет построен в рамках проекта по реновации промышленных территорий располагается на улице Токарева. Компания ''ИнтерСтрой'' стала первой в Севастополе и пятой в России, реализующей данный проект. Какие ассоциации у нас возникают при слове ''дом''? Теплота и уют, добро и любовь, забота и поддержка, вкусный чай и дружеские посиделки с друзьями, которые приходят к нам в гости. Звонкий смех и позитивные эмоции! Дом - это то место, Впервые наши покупатели смогут приобрести квартиры студии- самый востребованный в настоящий момент сегмент на рынке. Данный вид планировок сейчас не может предложить ни один застройщик в Севастополе. Жильё в новом микрорайоне станет доступнее для молодых семей. Кроме того, покупателям будут представлены просторные 2-3 комнатные квартиры с очень интересными и оригинальными планировками, дающими простор для воплощения в жизнь интерьера вашей мечты! За счёт собственных средств будет реализовано строительство детского сада и начальной школы. Мы позаботимся о новоселах ''Доброгорода'' - для комфортной жизни на первых этажах домов будут функционировать детские кружки, студии танцев, магазины, аптеки, стоматологии, салоны красоты. Важно! В Вашем новом доме будет действовать принцип ''двор без машин'': парковки будут располагаться исключительно по периметру домов, внутри дворового пространства будет расположена пешеходная зона для спокойных и безопасных прогулок. Общая жилая площадь ЖК ''Доброгород'' составит около 100 тысяч квадратных метров или 1979 квартир. ЖК ''Доброгород'' - не просто новый микрорайон. Это особая среда с цельной имиджевой составляющей, специально разработанным дизайном и цветовой гаммой. ''Доброгород'' - это семейный микрорайон с современными, теплыми и комфортными домами, идеальное место для жизни с семьей и встреч с друзьями. куда хочется возвращаться!
    60 м2
    1 / 9 этаж
    Кирпич - монолит
    • Показать контакты
    • Добавить в избранное
    60 м2
    1 / 9 этаж
    Кирпич - монолит
    12 000 000 
    200 000 /м2
    Новостройка,
    I-2027
    1/19
    2-к, Генерала Острякова проспект, 242а корп. 1 Показать на карте
    Ленинский
    Севастополь
    Двухкомнатная видовая квартира 49.5 м2, на 10/10 этаже дома, с просторной кухней 9 м2. Расположена в г. Севастополь, Ленинский район, проспект Генерала Острякова, 242а к1. Данный объект подойдет как для собственного проживания, так и в качестве высокорентабельной инвестиции. Позвоните нам, чтобы узнать все детали! Технические характеристики: -Адрес: г. Севастополь, Ленинский район, пр-кт Генерала Острякова, 242а к1-Год постройки дома: 2023-Этаж/этажность: 10/10-Количество комнат: 2-Комнаты: изолированные-Общая площадь: 49.5 м2-Жилая площадь: 30 м2-Площадь кухни: 9 м2-Высота потолка: 2.7 м-Санузел: совмещенный-Горячее водоснабжение: АГВДополнительная информация: Хотите каждый день видеть горы и прекрасный Севастополь? Жить в самом комфортном районе города? Дом 2023 года постройки. Квартира находится на 10 этаже 10-ти этажного дома. Из окон открывается прекрасный вид на город, даже видно гору Ай-Петри.Позвоните нам, чтобы назначить просмотр! Инфраструктура: Развитый район Севастополя, отличная транспортная развязка, до остановки 1 минута, развитая инфраструктура: совсем рядом расположен торговый центр SеаМаll,в котором есть кинотеатр, бутики, кафе. Рядом продуктовый рынок, школа, детский сад, 15 минут до пляжей Балаклавы и Фиолента, 15 минут до центра. Удобный и востребованный район. Подходит для наличного расчета. Документы РФ проверены юристами и готовы к сделке. Профессиональное сопровождение до получения права собственности.Добавьте предложение в закладки, чтобы не потерять! Для просмотра и получения дополнительной информации - звоните!
    50 м2
    10 / 10 этаж
    Монолит
    • Показать контакты
    • Добавить в избранное
    50 м2
    10 / 10 этаж
    Монолит
    9 000 000 
    180 000 /м2
    Новостройка,
    дом сдан
      1/8
      1-к квартира Показать на карте
      Гагаринский
      Севастополь
      Продаётся 1-комнатная квартира в строящемся доме (Дом 1, литера г), срок сдачи: IV-кв. 2027, общей площадью 47.7 кв.м., на 2 этаже. Квартира в жилом комплексе Дом на Маячной'' - это ваша возможность не выбирать между морем и активной жизнью, а брать все лучшее сразу. Жилой комплекс ''Дом на Маячной'' имеет прекрасное расположение, где близость моря сочетается с развитой инфраструктурой района. Каждый день вы будете дышать морским воздухом, находясь в самом эпицентре событий. Инновационный подход к архитектуре и строительству Использование только современных и качественных материаловИзысканные архитектурные решенияДизайнерские, эргономичные и вентилируемые фасады, которые отлично вписываются в прибрежный ландшафтУдобные планировки: это просторные кухни и гостиные, тихие спальни, большие окнаДля сохранения пространства квартиры предусмотрены отдельные кладовыеДизайнерские холлыДинамичный район Гагаринский район, где располагается жилой комплекс, лучший в городе. Тут есть все для идеального отдыха и комфортной жизни: самый большой зеленый оазис в городе - Парк Победы'', он просто создан для неспешных прогулок и утренних пробежекмного небольших уютных скверов и мест для отдыха, где вы сможете безопасно провести время с детьмипрекрасно оборудованные песчаные и галечные пляжи - тут вы сможете найти чем заняться в любое время годакрасивые набережные Парка Победы и Аквамарина созданы для того, чтобы любоваться закатамиТранспорт до ближайшей остановки общественного транспорта - всего несколько минут пешкоммаксимально комфортное передвижение на личном автомобиле - удобные транспортные развязки, новые дороги и места для парковкиоборудованы точки проката электросамокатовИнфраструктура район насыщен кафе, ресторанами, магазинами, аптеками и другими сервисамикрупные торговые центры с кинотеатрами и детскими зонами помогут вам организовать отдых для всей семьиСпа-центры, бассейны, тренажерные залы и стадионы для занятий спортомдетские сады, новые школы, широкий выбор спортивных секций и творческих студий - все в одном районе - вы сможете провести с детьми больше времени, не потратив его на дорогудля активного отдыха рядом есть современный скейт-парк, аквапарк Зурбаган'', яхт-клубы, сапсерфинг, организованные велосипедные и беговые дорожки.
      47 м2
      2 / 8 этаж
      Кирпич - монолит
      • Показать контакты
      • Добавить в избранное
      47 м2
      2 / 8 этаж
      Кирпич - монолит
      16 695 000 
      350 000 /м2
      Новостройка,
      IV-2027
      1/8
      1-к квартира Показать на карте
      Гагаринский
      Севастополь
      Продаётся 1-комнатная квартира в строящемся доме (Дом 1, литера г), срок сдачи: IV-кв. 2027, общей площадью 38.4 кв.м., на 2 этаже. Квартира в жилом комплексе Дом на Маячной'' - это ваша возможность не выбирать между морем и активной жизнью, а брать все лучшее сразу. Жилой комплекс ''Дом на Маячной'' имеет прекрасное расположение, где близость моря сочетается с развитой инфраструктурой района. Каждый день вы будете дышать морским воздухом, находясь в самом эпицентре событий. Инновационный подход к архитектуре и строительству Использование только современных и качественных материаловИзысканные архитектурные решенияДизайнерские, эргономичные и вентилируемые фасады, которые отлично вписываются в прибрежный ландшафтУдобные планировки: это просторные кухни и гостиные, тихие спальни, большие окнаДля сохранения пространства квартиры предусмотрены отдельные кладовыеДизайнерские холлыДинамичный район Гагаринский район, где располагается жилой комплекс, лучший в городе. Тут есть все для идеального отдыха и комфортной жизни: самый большой зеленый оазис в городе - Парк Победы'', он просто создан для неспешных прогулок и утренних пробежекмного небольших уютных скверов и мест для отдыха, где вы сможете безопасно провести время с детьмипрекрасно оборудованные песчаные и галечные пляжи - тут вы сможете найти чем заняться в любое время годакрасивые набережные Парка Победы и Аквамарина созданы для того, чтобы любоваться закатамиТранспорт до ближайшей остановки общественного транспорта - всего несколько минут пешкоммаксимально комфортное передвижение на личном автомобиле - удобные транспортные развязки, новые дороги и места для парковкиоборудованы точки проката электросамокатовИнфраструктура район насыщен кафе, ресторанами, магазинами, аптеками и другими сервисамикрупные торговые центры с кинотеатрами и детскими зонами помогут вам организовать отдых для всей семьиСпа-центры, бассейны, тренажерные залы и стадионы для занятий спортомдетские сады, новые школы, широкий выбор спортивных секций и творческих студий - все в одном районе - вы сможете провести с детьми больше времени, не потратив его на дорогудля активного отдыха рядом есть современный скейт-парк, аквапарк Зурбаган'', яхт-клубы, сапсерфинг, организованные велосипедные и беговые дорожки.
      38 м2
      2 / 8 этаж
      Кирпич - монолит
      • Показать контакты
      • Добавить в избранное
      38 м2
      2 / 8 этаж
      Кирпич - монолит
      13 440 000 
      350 000 /м2
      Новостройка,
      IV-2027
      1/8
      1-к квартира Показать на карте
      Гагаринский
      Севастополь
      Продаётся 1-комнатная квартира в строящемся доме (Дом 1, литера г), срок сдачи: IV-кв. 2027, общей площадью 38.4 кв.м., на 2 этаже. Квартира в жилом комплексе Дом на Маячной'' - это ваша возможность не выбирать между морем и активной жизнью, а брать все лучшее сразу. Жилой комплекс ''Дом на Маячной'' имеет прекрасное расположение, где близость моря сочетается с развитой инфраструктурой района. Каждый день вы будете дышать морским воздухом, находясь в самом эпицентре событий. Инновационный подход к архитектуре и строительству Использование только современных и качественных материаловИзысканные архитектурные решенияДизайнерские, эргономичные и вентилируемые фасады, которые отлично вписываются в прибрежный ландшафтУдобные планировки: это просторные кухни и гостиные, тихие спальни, большие окнаДля сохранения пространства квартиры предусмотрены отдельные кладовыеДизайнерские холлыДинамичный район Гагаринский район, где располагается жилой комплекс, лучший в городе. Тут есть все для идеального отдыха и комфортной жизни: самый большой зеленый оазис в городе - Парк Победы'', он просто создан для неспешных прогулок и утренних пробежекмного небольших уютных скверов и мест для отдыха, где вы сможете безопасно провести время с детьмипрекрасно оборудованные песчаные и галечные пляжи - тут вы сможете найти чем заняться в любое время годакрасивые набережные Парка Победы и Аквамарина созданы для того, чтобы любоваться закатамиТранспорт до ближайшей остановки общественного транспорта - всего несколько минут пешкоммаксимально комфортное передвижение на личном автомобиле - удобные транспортные развязки, новые дороги и места для парковкиоборудованы точки проката электросамокатовИнфраструктура район насыщен кафе, ресторанами, магазинами, аптеками и другими сервисамикрупные торговые центры с кинотеатрами и детскими зонами помогут вам организовать отдых для всей семьиСпа-центры, бассейны, тренажерные залы и стадионы для занятий спортомдетские сады, новые школы, широкий выбор спортивных секций и творческих студий - все в одном районе - вы сможете провести с детьми больше времени, не потратив его на дорогудля активного отдыха рядом есть современный скейт-парк, аквапарк Зурбаган'', яхт-клубы, сапсерфинг, организованные велосипедные и беговые дорожки.
      38 м2
      2 / 8 этаж
      Кирпич - монолит
      • Показать контакты
      • Добавить в избранное
      38 м2
      2 / 8 этаж
      Кирпич - монолит
      13 440 000 
      350 000 /м2
      Новостройка,
      IV-2027
      1/38
      1-к, Пляж Омега, 39 ст1 Показать на карте
      Гагаринский
      Севастополь
      Объект 28708. Продaм апapтаменты 52,5 кв.м в апарт-комлeксe ''Акватoрия'' c пpямым видoм нa моpe. Cтpoительство aпарт-комплекca завepшeно, ввoд в экcплуатaцию в ИЮHЕ. Прocторный балкон-терраса площадью 12,6 кв.м позволяет организовать пространство для отдыха с прекрасным видом на бухту и свежим морским бризом. Можно полежать под шум волн, выпить чашечку кофе любуясь восходом солнца, устроить ужин в закатных лучах. Раздвижное панорамное остекление высочайшего качества Кrаuss с отличной тепло и звукоизоляцией. Форма помещения предусматривает зонирование пространства на свое усмотрение, есть место для гардеробной. В апарт-комплексе своя газовая котельная, что позволит комфортно жить или сдавать апартаменты круглогодично. Благоустроенный оборудованный песчаный пляж в 10 метрах, прогулочная набережная, рядом расположен парк ''Победы'', удобная транспортная развязка во всех направлениях. Вместительная открытая парковка со стороны подъезда, есть возможность приобрести свое паркоместо на крытой парковке. Фасад здания красиво подсвечивается в вечернее время суток. Внешняя и внутренняя отделка выполнены превосходно!Успейте выгодно инвестировать в один из самых перспективных апарт-комплексов в Севастополе!
      52 м2
      6 / 7 этаж
      Монолит
      • Показать контакты
      • Добавить в избранное
      52 м2
      6 / 7 этаж
      Монолит
      11 450 000 
      220 192 /м2
      Новостройка,
      дом сдан
        1/5
        2-к квартира Показать на карте
        Ленинский
        Севастополь
        Продаётся 2-комнатная квартира в строящемся доме (8 этап. Дом 4), срок сдачи: I-кв. 2027, общей площадью 62.9 кв.м., на 1 этаже. Представляем Вам новый уникальный проект, получивший название - ЖК ''Доброгород''! Новый крупнейший микрорайон, который будет построен в рамках проекта по реновации промышленных территорий располагается на улице Токарева. Компания ''ИнтерСтрой'' стала первой в Севастополе и пятой в России, реализующей данный проект. Какие ассоциации у нас возникают при слове ''дом''? Теплота и уют, добро и любовь, забота и поддержка, вкусный чай и дружеские посиделки с друзьями, которые приходят к нам в гости. Звонкий смех и позитивные эмоции! Дом - это то место, Впервые наши покупатели смогут приобрести квартиры студии- самый востребованный в настоящий момент сегмент на рынке. Данный вид планировок сейчас не может предложить ни один застройщик в Севастополе. Жильё в новом микрорайоне станет доступнее для молодых семей. Кроме того, покупателям будут представлены просторные 2-3 комнатные квартиры с очень интересными и оригинальными планировками, дающими простор для воплощения в жизнь интерьера вашей мечты! За счёт собственных средств будет реализовано строительство детского сада и начальной школы. Мы позаботимся о новоселах ''Доброгорода'' - для комфортной жизни на первых этажах домов будут функционировать детские кружки, студии танцев, магазины, аптеки, стоматологии, салоны красоты. Важно! В Вашем новом доме будет действовать принцип ''двор без машин'': парковки будут располагаться исключительно по периметру домов, внутри дворового пространства будет расположена пешеходная зона для спокойных и безопасных прогулок. Общая жилая площадь ЖК ''Доброгород'' составит около 100 тысяч квадратных метров или 1979 квартир. ЖК ''Доброгород'' - не просто новый микрорайон. Это особая среда с цельной имиджевой составляющей, специально разработанным дизайном и цветовой гаммой. ''Доброгород'' - это семейный микрорайон с современными, теплыми и комфортными домами, идеальное место для жизни с семьей и встреч с друзьями. куда хочется возвращаться!
        60 м2
        1 / 9 этаж
        Кирпич - монолит
        • Показать контакты
        • Добавить в избранное
        60 м2
        1 / 9 этаж
        Кирпич - монолит
        12 000 000 
        200 000 /м2
        Новостройка,
        I-2027
        1/19
        1-к, Героев Бреста, 58а/2 Показать на карте
        Гагаринский
        Севастополь
        Квартира-студия 33,9 м2, на 3/4 этаже дома. Расположена в г. Севастополь, Гагаринский район, улица Героев Бреста 58 а/1. Квартира теплая и солнечная, с удобной практичной планировкой, подойдет для проживания, а также для сдачи в аренду. Позвоните нам, чтобы узнать все детали! Технические характеристики: -Адрес: г. Севастополь, Гагаринский район, улица Героев Бреста 58 а/1-Год постройки дома: 2022-Этаж/этажность: 3/4-Общая площадь: 33,9 м2-Жилая площадь: 20 м2-Высота потолка: 2,8 м-Санузел: совмещенный-Водоснабжение: центральное-Горячее водоснабжение: котелДополнительная информация: С уютного балкона вид на море. Квартира-студия на закрытой территории, площадью 33,9м2, в доме заведены все городские коммуникации: газ, вода, канализация, электричество. Двор закрывается калиткой и автоматическими воротами, солнечное и удобное место.Дом сдан и заселен, люди уже проживают, другие делают ремонт. Документы готовы. Получены согласия от остальных собственников. Дом на ИЖС. Своя котельная.Очень уютный дворик.Позвоните нам, чтобы назначить просмотр! Инфраструктура: Дом находится в районе с развитой инфраструктурой. В пешей доступности находится ТЦ ''Апельсин'', детский сад 131, школы: 54 и 15 . Также в непосредственной близости находятся продуктовые и бытовые магазины, салоны красоты и детские развивающие центры.До ближайших городских пляжей Парк Победы и ''Омега'' 8 минут пешком. Также Вы можете абсолютно без пробок попасть на самые красивые пляжи города Каравелла, ''Баунти'', а также Яшмовый пляж. Подходит для наличного расчета. Документы РФ проверены юристами и готовы к сделке. Профессиональное сопровождение до получения права собственности.Добавьте предложение в закладки, чтобы не потерять! Для просмотра и получения дополнительной информации - звоните!
        33 м2
        3 / 4 этаж
        Бетонные блоки
        • Показать контакты
        • Добавить в избранное
        33 м2
        3 / 4 этаж
        Бетонные блоки
        5 500 000 
        162 242 /м2
        Новостройка,
        дом сдан
          1/5
          2-к квартира Показать на карте
          Ленинский
          Севастополь
          Продаётся 2-комнатная квартира в строящемся доме (8 этап. Дом 2), срок сдачи: I-кв. 2027, общей площадью 68.3 кв.м., на 7 этаже. Представляем Вам новый уникальный проект, получивший название - ЖК ''Доброгород''! Новый крупнейший микрорайон, который будет построен в рамках проекта по реновации промышленных территорий располагается на улице Токарева. Компания ''ИнтерСтрой'' стала первой в Севастополе и пятой в России, реализующей данный проект. Какие ассоциации у нас возникают при слове ''дом''? Теплота и уют, добро и любовь, забота и поддержка, вкусный чай и дружеские посиделки с друзьями, которые приходят к нам в гости. Звонкий смех и позитивные эмоции! Дом - это то место, Впервые наши покупатели смогут приобрести квартиры студии- самый востребованный в настоящий момент сегмент на рынке. Данный вид планировок сейчас не может предложить ни один застройщик в Севастополе. Жильё в новом микрорайоне станет доступнее для молодых семей. Кроме того, покупателям будут представлены просторные 2-3 комнатные квартиры с очень интересными и оригинальными планировками, дающими простор для воплощения в жизнь интерьера вашей мечты! За счёт собственных средств будет реализовано строительство детского сада и начальной школы. Мы позаботимся о новоселах ''Доброгорода'' - для комфортной жизни на первых этажах домов будут функционировать детские кружки, студии танцев, магазины, аптеки, стоматологии, салоны красоты. Важно! В Вашем новом доме будет действовать принцип ''двор без машин'': парковки будут располагаться исключительно по периметру домов, внутри дворового пространства будет расположена пешеходная зона для спокойных и безопасных прогулок. Общая жилая площадь ЖК ''Доброгород'' составит около 100 тысяч квадратных метров или 1979 квартир. ЖК ''Доброгород'' - не просто новый микрорайон. Это особая среда с цельной имиджевой составляющей, специально разработанным дизайном и цветовой гаммой. ''Доброгород'' - это семейный микрорайон с современными, теплыми и комфортными домами, идеальное место для жизни с семьей и встреч с друзьями. куда хочется возвращаться!
          68 м2
          7 / 9 этаж
          Кирпич - монолит
          • Показать контакты
          • Добавить в избранное
          68 м2
          7 / 9 этаж
          Кирпич - монолит
          13 660 000 
          200 000 /м2
          Новостройка,
          I-2027
          1/5
          2-к квартира Показать на карте
          Ленинский
          Севастополь
          Продаётся 2-комнатная квартира в строящемся доме (8 этап. Дом 2), срок сдачи: I-кв. 2027, общей площадью 68.3 кв.м., на 9 этаже. Представляем Вам новый уникальный проект, получивший название - ЖК ''Доброгород''! Новый крупнейший микрорайон, который будет построен в рамках проекта по реновации промышленных территорий располагается на улице Токарева. Компания ''ИнтерСтрой'' стала первой в Севастополе и пятой в России, реализующей данный проект. Какие ассоциации у нас возникают при слове ''дом''? Теплота и уют, добро и любовь, забота и поддержка, вкусный чай и дружеские посиделки с друзьями, которые приходят к нам в гости. Звонкий смех и позитивные эмоции! Дом - это то место, Впервые наши покупатели смогут приобрести квартиры студии- самый востребованный в настоящий момент сегмент на рынке. Данный вид планировок сейчас не может предложить ни один застройщик в Севастополе. Жильё в новом микрорайоне станет доступнее для молодых семей. Кроме того, покупателям будут представлены просторные 2-3 комнатные квартиры с очень интересными и оригинальными планировками, дающими простор для воплощения в жизнь интерьера вашей мечты! За счёт собственных средств будет реализовано строительство детского сада и начальной школы. Мы позаботимся о новоселах ''Доброгорода'' - для комфортной жизни на первых этажах домов будут функционировать детские кружки, студии танцев, магазины, аптеки, стоматологии, салоны красоты. Важно! В Вашем новом доме будет действовать принцип ''двор без машин'': парковки будут располагаться исключительно по периметру домов, внутри дворового пространства будет расположена пешеходная зона для спокойных и безопасных прогулок. Общая жилая площадь ЖК ''Доброгород'' составит около 100 тысяч квадратных метров или 1979 квартир. ЖК ''Доброгород'' - не просто новый микрорайон. Это особая среда с цельной имиджевой составляющей, специально разработанным дизайном и цветовой гаммой. ''Доброгород'' - это семейный микрорайон с современными, теплыми и комфортными домами, идеальное место для жизни с семьей и встреч с друзьями. куда хочется возвращаться!
          68 м2
          9 / 9 этаж
          Кирпич - монолит
          • Показать контакты
          • Добавить в избранное
          68 м2
          9 / 9 этаж
          Кирпич - монолит
          13 660 000 
          200 000 /м2
          Новостройка,
          I-2027
          1/5
          2-к квартира Показать на карте
          Ленинский
          Севастополь
          Продаётся 2-комнатная квартира в строящемся доме (8 этап. Дом 2), срок сдачи: I-кв. 2027, общей площадью 68.3 кв.м., на 9 этаже. Представляем Вам новый уникальный проект, получивший название - ЖК ''Доброгород''! Новый крупнейший микрорайон, который будет построен в рамках проекта по реновации промышленных территорий располагается на улице Токарева. Компания ''ИнтерСтрой'' стала первой в Севастополе и пятой в России, реализующей данный проект. Какие ассоциации у нас возникают при слове ''дом''? Теплота и уют, добро и любовь, забота и поддержка, вкусный чай и дружеские посиделки с друзьями, которые приходят к нам в гости. Звонкий смех и позитивные эмоции! Дом - это то место, Впервые наши покупатели смогут приобрести квартиры студии- самый востребованный в настоящий момент сегмент на рынке. Данный вид планировок сейчас не может предложить ни один застройщик в Севастополе. Жильё в новом микрорайоне станет доступнее для молодых семей. Кроме того, покупателям будут представлены просторные 2-3 комнатные квартиры с очень интересными и оригинальными планировками, дающими простор для воплощения в жизнь интерьера вашей мечты! За счёт собственных средств будет реализовано строительство детского сада и начальной школы. Мы позаботимся о новоселах ''Доброгорода'' - для комфортной жизни на первых этажах домов будут функционировать детские кружки, студии танцев, магазины, аптеки, стоматологии, салоны красоты. Важно! В Вашем новом доме будет действовать принцип ''двор без машин'': парковки будут располагаться исключительно по периметру домов, внутри дворового пространства будет расположена пешеходная зона для спокойных и безопасных прогулок. Общая жилая площадь ЖК ''Доброгород'' составит около 100 тысяч квадратных метров или 1979 квартир. ЖК ''Доброгород'' - не просто новый микрорайон. Это особая среда с цельной имиджевой составляющей, специально разработанным дизайном и цветовой гаммой. ''Доброгород'' - это семейный микрорайон с современными, теплыми и комфортными домами, идеальное место для жизни с семьей и встреч с друзьями. куда хочется возвращаться!
          68 м2
          9 / 9 этаж
          Кирпич - монолит
          • Показать контакты
          • Добавить в избранное
          68 м2
          9 / 9 этаж
          Кирпич - монолит
          13 660 000 
          200 000 /м2
          Новостройка,
          I-2027
          1/5
          2-к квартира Показать на карте
          Ленинский
          Севастополь
          Продаётся 2-комнатная квартира в строящемся доме (8 этап. Дом 2), срок сдачи: I-кв. 2027, общей площадью 68.3 кв.м., на 7 этаже. Представляем Вам новый уникальный проект, получивший название - ЖК ''Доброгород''! Новый крупнейший микрорайон, который будет построен в рамках проекта по реновации промышленных территорий располагается на улице Токарева. Компания ''ИнтерСтрой'' стала первой в Севастополе и пятой в России, реализующей данный проект. Какие ассоциации у нас возникают при слове ''дом''? Теплота и уют, добро и любовь, забота и поддержка, вкусный чай и дружеские посиделки с друзьями, которые приходят к нам в гости. Звонкий смех и позитивные эмоции! Дом - это то место, Впервые наши покупатели смогут приобрести квартиры студии- самый востребованный в настоящий момент сегмент на рынке. Данный вид планировок сейчас не может предложить ни один застройщик в Севастополе. Жильё в новом микрорайоне станет доступнее для молодых семей. Кроме того, покупателям будут представлены просторные 2-3 комнатные квартиры с очень интересными и оригинальными планировками, дающими простор для воплощения в жизнь интерьера вашей мечты! За счёт собственных средств будет реализовано строительство детского сада и начальной школы. Мы позаботимся о новоселах ''Доброгорода'' - для комфортной жизни на первых этажах домов будут функционировать детские кружки, студии танцев, магазины, аптеки, стоматологии, салоны красоты. Важно! В Вашем новом доме будет действовать принцип ''двор без машин'': парковки будут располагаться исключительно по периметру домов, внутри дворового пространства будет расположена пешеходная зона для спокойных и безопасных прогулок. Общая жилая площадь ЖК ''Доброгород'' составит около 100 тысяч квадратных метров или 1979 квартир. ЖК ''Доброгород'' - не просто новый микрорайон. Это особая среда с цельной имиджевой составляющей, специально разработанным дизайном и цветовой гаммой. ''Доброгород'' - это семейный микрорайон с современными, теплыми и комфортными домами, идеальное место для жизни с семьей и встреч с друзьями. куда хочется возвращаться!
          68 м2
          7 / 9 этаж
          Кирпич - монолит
          • Показать контакты
          • Добавить в избранное
          68 м2
          7 / 9 этаж
          Кирпич - монолит
          13 660 000 
          200 000 /м2
          Новостройка,
          I-2027
          1/5
          2-к квартира Показать на карте
          Ленинский
          Севастополь
          Продаётся 2-комнатная квартира в строящемся доме (8 этап. Дом 2), срок сдачи: I-кв. 2027, общей площадью 68.3 кв.м., на 2 этаже. Представляем Вам новый уникальный проект, получивший название - ЖК ''Доброгород''! Новый крупнейший микрорайон, который будет построен в рамках проекта по реновации промышленных территорий располагается на улице Токарева. Компания ''ИнтерСтрой'' стала первой в Севастополе и пятой в России, реализующей данный проект. Какие ассоциации у нас возникают при слове ''дом''? Теплота и уют, добро и любовь, забота и поддержка, вкусный чай и дружеские посиделки с друзьями, которые приходят к нам в гости. Звонкий смех и позитивные эмоции! Дом - это то место, Впервые наши покупатели смогут приобрести квартиры студии- самый востребованный в настоящий момент сегмент на рынке. Данный вид планировок сейчас не может предложить ни один застройщик в Севастополе. Жильё в новом микрорайоне станет доступнее для молодых семей. Кроме того, покупателям будут представлены просторные 2-3 комнатные квартиры с очень интересными и оригинальными планировками, дающими простор для воплощения в жизнь интерьера вашей мечты! За счёт собственных средств будет реализовано строительство детского сада и начальной школы. Мы позаботимся о новоселах ''Доброгорода'' - для комфортной жизни на первых этажах домов будут функционировать детские кружки, студии танцев, магазины, аптеки, стоматологии, салоны красоты. Важно! В Вашем новом доме будет действовать принцип ''двор без машин'': парковки будут располагаться исключительно по периметру домов, внутри дворового пространства будет расположена пешеходная зона для спокойных и безопасных прогулок. Общая жилая площадь ЖК ''Доброгород'' составит около 100 тысяч квадратных метров или 1979 квартир. ЖК ''Доброгород'' - не просто новый микрорайон. Это особая среда с цельной имиджевой составляющей, специально разработанным дизайном и цветовой гаммой. ''Доброгород'' - это семейный микрорайон с современными, теплыми и комфортными домами, идеальное место для жизни с семьей и встреч с друзьями. куда хочется возвращаться!
          68 м2
          2 / 9 этаж
          Кирпич - монолит
          • Показать контакты
          • Добавить в избранное
          68 м2
          2 / 9 этаж
          Кирпич - монолит
          13 660 000 
          200 000 /м2
          Новостройка,
          I-2027
          1/5
          2-к квартира Показать на карте
          Ленинский
          Севастополь
          Продаётся 2-комнатная квартира в строящемся доме (8 этап. Дом 2), срок сдачи: I-кв. 2027, общей площадью 68.3 кв.м., на 2 этаже. Представляем Вам новый уникальный проект, получивший название - ЖК ''Доброгород''! Новый крупнейший микрорайон, который будет построен в рамках проекта по реновации промышленных территорий располагается на улице Токарева. Компания ''ИнтерСтрой'' стала первой в Севастополе и пятой в России, реализующей данный проект. Какие ассоциации у нас возникают при слове ''дом''? Теплота и уют, добро и любовь, забота и поддержка, вкусный чай и дружеские посиделки с друзьями, которые приходят к нам в гости. Звонкий смех и позитивные эмоции! Дом - это то место, Впервые наши покупатели смогут приобрести квартиры студии- самый востребованный в настоящий момент сегмент на рынке. Данный вид планировок сейчас не может предложить ни один застройщик в Севастополе. Жильё в новом микрорайоне станет доступнее для молодых семей. Кроме того, покупателям будут представлены просторные 2-3 комнатные квартиры с очень интересными и оригинальными планировками, дающими простор для воплощения в жизнь интерьера вашей мечты! За счёт собственных средств будет реализовано строительство детского сада и начальной школы. Мы позаботимся о новоселах ''Доброгорода'' - для комфортной жизни на первых этажах домов будут функционировать детские кружки, студии танцев, магазины, аптеки, стоматологии, салоны красоты. Важно! В Вашем новом доме будет действовать принцип ''двор без машин'': парковки будут располагаться исключительно по периметру домов, внутри дворового пространства будет расположена пешеходная зона для спокойных и безопасных прогулок. Общая жилая площадь ЖК ''Доброгород'' составит около 100 тысяч квадратных метров или 1979 квартир. ЖК ''Доброгород'' - не просто новый микрорайон. Это особая среда с цельной имиджевой составляющей, специально разработанным дизайном и цветовой гаммой. ''Доброгород'' - это семейный микрорайон с современными, теплыми и комфортными домами, идеальное место для жизни с семьей и встреч с друзьями. куда хочется возвращаться!
          68 м2
          2 / 9 этаж
          Кирпич - монолит
          • Показать контакты
          • Добавить в избранное
          68 м2
          2 / 9 этаж
          Кирпич - монолит
          13 660 000 
          200 000 /м2
          Новостройка,
          I-2027
          1/9
          2-к, Братьев Манганари, 30 корп. 1 Показать на карте
          Гагаринский
          Севастополь
          **Добро пожаловать в мир комфорта и уюта!** Мы рады представить вам светлую и просторную 2-комнатную квартиру по адресу: г. Севастополь, ул. Братьев Манганари, 30к1. Эта квартира — идеальный выбор для тех, кто мечтает жить всего в **100 метрах от моря** , наслаждаясь свежим морским воздухом и прекрасными пляжами в любое время года. Квартира общей площадью **63.5 квадратных метра** отличается продуманной **изолированной планировкой**, что обеспечит вам и вашим близким уединение и комфорт. Две жилые комнаты площадью **14 и 14 м²** предлагают достаточно пространства для отдыха и досуга, а **просторная кухня на 14 м²** станет настоящим оазисом для кулинарных наслаждений. Высокие потолки (2.8 м) создают ощущение легкости и простора, что только добавляет привлекательности вашему новому дому. **Современный кирпично-монолитный дом**, построенный в 2023 году, оборудован всем необходимым для комфортной жизни. В вашем распоряжении будут **пассажирский и грузовой лифты**, мусоропровод, а также открытая парковка во дворе. И не забудьте про уютный **балкон**, где вы сможете провести вечер за чашечкой кофе, наслаждаясь видом на двор . Приобретая эту квартиру, вы получаете возможность прямой продажи, что значительно упрощает процесс оформления сделки. Возможна **ипотека**, а также **онлайн-показ** квартиры в любое удобное для вас время! Эта квартира готова стать вашим новым уютным уголком в Севастополе. Не упустите шанс на комфортную жизнь в этом замечательном месте! Позвоните нам сегодня, чтобы записаться на просмотр!
          63 м2
          1 / 9 этаж
          Кирпич - монолит
          • Показать контакты
          • Добавить в избранное
          63 м2
          1 / 9 этаж
          Кирпич - монолит
          10 400 000 
          163 780 /м2
          Новостройка,
          дом сдан
            1/12
            1-к, Омега-Сити ЖК, 39 ст2 Показать на карте
            Гагаринский
            Севастополь
            **Продается уютная апарт-студия в Севастополе!** Предлагаем вашему вниманию уникальные апартаменты общей площадью 42.5 м² в новом апарт-комплексе ''Акватория'', расположенном в живописном районе на берегу бухты Омега. Эти апартаменты на 6 этаже 9-этажного кирпично-монолитного дома станет идеальным местом для комфортной городской жизни или инвестиций в недвижимость у моря. **Преимущества апартаментов:** - Просторная смежная планировка с высокими потолками 3.5 метра создает ощущение свободы и уюта. - Уютная кухня площадью 7 м² и комната 20 м², где вы сможете создать свое идеальное пространство. - Подземный паркинг обеспечит безопасность вашего автомобиля, а также рядом есть открытая парковка для гостей. **Уникальное расположение:** Апартаменты всего в 10 метрах от одного из самых красивых пляжей Севастополя — пляжа Омега. Здесь песчаный берег, бирюзовые волны и современная пляжная инфраструктура. Более того, ухоженные кипарисовые аллеи создают атмосферу спокойствия и уюта для прогулок по вечерам. Не упустите возможность насладиться натуральной красотой и легким морским бризом всего в шаговой доступности от вашего дома! **Инфраструктура:** Вы сможете пользоваться всеми благами городской инфраструктуры, а роскошная зона отдыха и затененные площадки в комплексе обеспечат вам комфорт даже в самые жаркие дни. Пляж Омега - это любимое место как для местных жителей, так и для туристов. **Показы онлайн:** Хотите увидеть свои будущие апартаменты уже сегодня? Я готова провести для вас онлайн-показ в удобное время! Не упустите уникальную возможность стать обладателем апартаментов мечты на берегу моря. Звоните прямо сейчас!
            42 м2
            6 / 7 этаж
            Кирпич - монолит
            • Показать контакты
            • Добавить в избранное
            42 м2
            6 / 7 этаж
            Кирпич - монолит
            8 500 000 
            200 000 /м2
            Новостройка,
            дом сдан
              1/20
              2-к, Братьев Манганари, 30 корп. 1 Показать на карте
              Гагаринский
              Севастополь
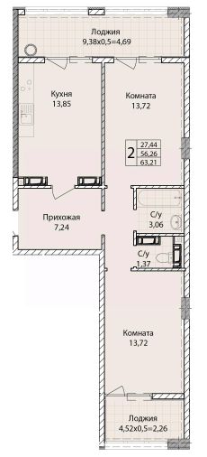
              Продаётся 2-комнатная квартира в сданном доме (Корпус 8), срок сдачи: IV-кв. 2024, общей площадью 63.21 кв.м., на 9 этаже. ''Porto Franco'' это новый жилой комплекс у моря на западном берегу Камышовой бухты Севастополя, построенный по технологии префаб. Средиземноморский стиль, красивый двор, стильные фасады и завораживающий вид на море и порт. Благоустройство дворовой территории выполнено по всем современным стандартам: огороженные детские площадки с безопасным покрытием, оборудованные площадки для спорта, безопасные пешеходные переходы, зоны для отдыха с теневыми навесами и другие объекты. Главная задача обеспечить жильцам разного возраста возможность для комфортного и безопасного проведения досуга на территории жилого комплекса в любое время года. ЖК ''Porto Franco'' находится в пешей доступности от всех социально значимых объектов: нового детского сада, школы образовательного центра ''Казачья бухта'', детской поликлиники 2, рынка. Главное преимущество ЖК ''Porto Franco'' расположение в 300 метрах от моря. Наслаждайтесь видом на море, закатами, прогулками по побережью... Живите у моря по-настоящему!300 метров до пляжа и морской пейзаж на 150 градусов! Вдали от шумных трасс и магистралей. Новые школа, детский сад и рынок в 800 метрах.
              63 м2
              9 / 9 этаж
              Монолит
              • Показать контакты
              • Добавить в избранное
              63 м2
              9 / 9 этаж
              Монолит
              11 400 000 
              180 351 /м2
              Новостройка,
              дом сдан
              1/20
              2-к, Братьев Манганари, 30 корп. 2 Показать на карте
              Гагаринский
              Севастополь
              Продаётся 2-комнатная квартира в сданном доме (Корпус 9), срок сдачи: IV-кв. 2024, общей площадью 64.44 кв.м., на 1 этаже. ''Porto Franco'' это новый жилой комплекс у моря на западном берегу Камышовой бухты Севастополя, построенный по технологии префаб. Средиземноморский стиль, красивый двор, стильные фасады и завораживающий вид на море и порт. Благоустройство дворовой территории выполнено по всем современным стандартам: огороженные детские площадки с безопасным покрытием, оборудованные площадки для спорта, безопасные пешеходные переходы, зоны для отдыха с теневыми навесами и другие объекты. Главная задача обеспечить жильцам разного возраста возможность для комфортного и безопасного проведения досуга на территории жилого комплекса в любое время года. ЖК ''Porto Franco'' находится в пешей доступности от всех социально значимых объектов: нового детского сада, школы образовательного центра ''Казачья бухта'', детской поликлиники 2, рынка. Главное преимущество ЖК ''Porto Franco'' расположение в 300 метрах от моря. Наслаждайтесь видом на море, закатами, прогулками по побережью... Живите у моря по-настоящему!300 метров до пляжа и морской пейзаж на 150 градусов! Вдали от шумных трасс и магистралей. Новые школа, детский сад и рынок в 800 метрах.
              64 м2
              1 / 9 этаж
              Монолит
              • Показать контакты
              • Добавить в избранное
              64 м2
              1 / 9 этаж
              Монолит
              10 600 000 
              164 494 /м2
              Новостройка,
              дом сдан
              1/20
              2-к, Братьев Манганари, 30 корп. 1 Показать на карте
              Гагаринский
              Севастополь
              Продаётся 2-комнатная квартира в сданном доме (Корпус 8), срок сдачи: IV-кв. 2024, общей площадью 63.21 кв.м., на 9 этаже. ''Porto Franco'' это новый жилой комплекс у моря на западном берегу Камышовой бухты Севастополя, построенный по технологии префаб. Средиземноморский стиль, красивый двор, стильные фасады и завораживающий вид на море и порт. Благоустройство дворовой территории выполнено по всем современным стандартам: огороженные детские площадки с безопасным покрытием, оборудованные площадки для спорта, безопасные пешеходные переходы, зоны для отдыха с теневыми навесами и другие объекты. Главная задача обеспечить жильцам разного возраста возможность для комфортного и безопасного проведения досуга на территории жилого комплекса в любое время года. ЖК ''Porto Franco'' находится в пешей доступности от всех социально значимых объектов: нового детского сада, школы образовательного центра ''Казачья бухта'', детской поликлиники 2, рынка. Главное преимущество ЖК ''Porto Franco'' расположение в 300 метрах от моря. Наслаждайтесь видом на море, закатами, прогулками по побережью... Живите у моря по-настоящему!300 метров до пляжа и морской пейзаж на 150 градусов! Вдали от шумных трасс и магистралей. Новые школа, детский сад и рынок в 800 метрах.
              63 м2
              9 / 9 этаж
              Монолит
              • Показать контакты
              • Добавить в избранное
              63 м2
              9 / 9 этаж
              Монолит
              11 400 000 
              180 351 /м2
              Новостройка,
              дом сдан
              1/20
              2-к, Братьев Манганари, 30 корп. 2 Показать на карте
              Гагаринский
              Севастополь
              Продаётся 2-комнатная квартира в сданном доме (Корпус 9), срок сдачи: IV-кв. 2024, общей площадью 64.44 кв.м., на 1 этаже. ''Porto Franco'' это новый жилой комплекс у моря на западном берегу Камышовой бухты Севастополя, построенный по технологии префаб. Средиземноморский стиль, красивый двор, стильные фасады и завораживающий вид на море и порт. Благоустройство дворовой территории выполнено по всем современным стандартам: огороженные детские площадки с безопасным покрытием, оборудованные площадки для спорта, безопасные пешеходные переходы, зоны для отдыха с теневыми навесами и другие объекты. Главная задача обеспечить жильцам разного возраста возможность для комфортного и безопасного проведения досуга на территории жилого комплекса в любое время года. ЖК ''Porto Franco'' находится в пешей доступности от всех социально значимых объектов: нового детского сада, школы образовательного центра ''Казачья бухта'', детской поликлиники 2, рынка. Главное преимущество ЖК ''Porto Franco'' расположение в 300 метрах от моря. Наслаждайтесь видом на море, закатами, прогулками по побережью... Живите у моря по-настоящему!300 метров до пляжа и морской пейзаж на 150 градусов! Вдали от шумных трасс и магистралей. Новые школа, детский сад и рынок в 800 метрах.
              64 м2
              1 / 9 этаж
              Монолит
              • Показать контакты
              • Добавить в избранное
              64 м2
              1 / 9 этаж
              Монолит
              10 600 000 
              164 494 /м2
              Новостройка,
              дом сдан
              1/20
              2-к, Братьев Манганари, 30 корп. 2 Показать на карте
              Гагаринский
              Севастополь
              Продаётся 2-комнатная квартира в сданном доме (Корпус 9), срок сдачи: IV-кв. 2024, общей площадью 64.44 кв.м., на 1 этаже. ''Porto Franco'' это новый жилой комплекс у моря на западном берегу Камышовой бухты Севастополя, построенный по технологии префаб. Средиземноморский стиль, красивый двор, стильные фасады и завораживающий вид на море и порт. Благоустройство дворовой территории выполнено по всем современным стандартам: огороженные детские площадки с безопасным покрытием, оборудованные площадки для спорта, безопасные пешеходные переходы, зоны для отдыха с теневыми навесами и другие объекты. Главная задача обеспечить жильцам разного возраста возможность для комфортного и безопасного проведения досуга на территории жилого комплекса в любое время года. ЖК ''Porto Franco'' находится в пешей доступности от всех социально значимых объектов: нового детского сада, школы образовательного центра ''Казачья бухта'', детской поликлиники 2, рынка. Главное преимущество ЖК ''Porto Franco'' расположение в 300 метрах от моря. Наслаждайтесь видом на море, закатами, прогулками по побережью... Живите у моря по-настоящему!300 метров до пляжа и морской пейзаж на 150 градусов! Вдали от шумных трасс и магистралей. Новые школа, детский сад и рынок в 800 метрах.
              64 м2
              1 / 9 этаж
              Монолит
              • Показать контакты
              • Добавить в избранное
              64 м2
              1 / 9 этаж
              Монолит
              10 600 000 
              164 494 /м2
              Новостройка,
              дом сдан
              • В начало
              • 16
              • 17
              • 18
              • 19
              • 20
              • Следующая
              Распечатать
              Продажа квартир в новостройках в Севастополе
              • по районам
              • 5-й километр
              • 5-й микрорайон
              • Андреевка
              • Балаклава
              • Балаклавский
              • Балаклавский
              • Бартеньевка
              • Гагаринский
              • Гагаринский
              • Горпищенко
              • Горпищенко
              • Инкерман
              • Казачья бухта
              • Камышовая бухта
              • Кача
              • Корабельная сторона
              • Красная горка
              • Ленинский
              • Ленинский
              • Летчики
              • Любимовка
              • Матюшенко
              • Нахимовский
              • Нахимовский
              • Омега
              • Острякова
              • Острякова
              • Победа
              • Радиогорка
              • Северная сторона
              • Стрелецкая бухта
              • Учкуевка
              • Фиолент
              • Фиолент
              • Хрулева
              • Центр
              • Центр

              Вместе с этим также ищут:

              Продажа квартир в Севастополе Продажа однокомнатных квартир в Севастополе Продажа комнат в Севастополе Продажа гаражей в Севастополе Продажа вторички - квартиры в Севастополе Квартиры в новостройках в Севастополе

              🏠 Как купить квартиру в Севастополе на N1?

              • ✔ В поисках объявления о продаже или покупке квартир в Севастополе?
              • ✔ На N1 размещены 668 квартир
              • ✔ Чтобы купить или продать недвижимость, воспользуйтесь формой поиска, фильтрами или быстрыми ссылками.

              💸 Сколько стоит квартира в Севастополе?

              • 🟢 Средняя цена продажи квартир - 12,22 млн ₽
              • 🟢 Минимальная стоимость за 1 м2: 248,73 тыс ₽

              📚 Какая площадь квартир?

              • Наибольшая площадь: 92 м²
              • Минимальная площадь: 17 м²