4-к квартира Показать на карте
Балаклавский
Севастополь
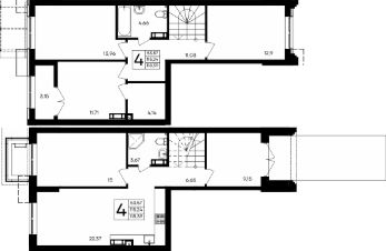
Продаётся 4-комнатная квартира в строящемся доме (Дом 4), срок сдачи: II-кв. 2028, общей площадью 118.39 кв.м., на 1 этаже. ''Семисчастье'' - город счастья. Счастье - это когда дом наполнен детским смехом. Когда уютные вечера собирают всю семью за одним столом, а каждый день приносит радость. Это простые, но важные моменты, которые запоминаются на всю жизнь. ''Семисчастье'' - это место, где каждое мгновение имеет значение. Первый проект подобного масштаба в Севастополе: Амбициозный проект комплексного развития территории в районе 7 километра Балаклавского шоссе. Это район, вдохновляющий своим размахом. 70+ гектаров территории7 000+ квартир комфорт-класса54 многоквартирных дома и 41 таунхаус3 жилых квартала
118 м2
1 / 9 этаж
Кирпич - монолит
- Показать контакты
- Добавить в избранное
118 м2
1 / 9 этаж
Кирпич - монолит
21 310 200
180 000 /м2
Новостройка,
II-2028
II-2028
