4-к, Пионерская, 3 Показать на карте
Ленинский
Севастополь
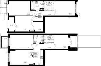
Четырехкомнатная двухуровневая квартира 165 м2 с учетом балконов, на 5/6 этаже дома, с просторной кухней 18,4 м2 и живописным видом на море и Херсонес. Расположена в г. Севастополь, Ленинский район, улица Пионерская, д. 3 Данный объект подойдет как для собственного проживания, так и в качестве высокорентабельной инвестиции. Позвоните нам, чтобы узнать все детали! Технические характеристики: -Адрес: г Севастополь, Ленинский район, улица Пионерская, д. 3-Год постройки дома: 1999-Этаж/этажность: 5/6-Количество комнат: 4-Комнаты: изолированные-Общая площадь: 165 м2-Жилая площадь: 76 м2 (26+22+14,6+13,4)-Площадь кухни: 18,4 м2-Коридор: 22,3 м2 и 15,2 м2-Балконы: 8 м2, 6 м2, 4 м2-Высота потолка: 3 м-Санузел: совмещенный 6 м2-Санузел раздельный: 7,3 м2 и 1,3 м2-Водоснабжение: центральное-Горячее водоснабжение: АГВ-Отопление: АГВДополнительная информация: В тихом центре города продается видовая двухуровневая четырехкомнатная квартира на 5 этаже 6-ти этажного дома с высокими потолками 3 метра и видом на море и Херсонес. Квартира с очень удобной планировкой и просторными комнатами. Общая площадь квартиры с балконами составляет - 165 м2. Все комнаты раздельные. Площадь комнат - 26 м2 с выходом на балкон 8 м2, 22 м2, 14,6 м2, 13,4 м2 с выходом на балкон 4 м2. Кухня гостиная 18,4 м2 с выходом на балкон 6 м2. Коридоры 22,3 м2 и 15,2 м2. Санузлы 6 м2 совмещенный, раздельный - 7,3 м2 и 1,3 м2. Все помещения правильной формы.Квартира теплая, уютная, из инкерманского камня, отопление и горячая вода в квартире от двухконтурного газового котла, что позволит вам регулировать комфортную температуру и наслаждаться горячей водой в вашем доме в любое время года и значительно сэкономит расходы на оплату услуг ЖКХ. Заменена электрика, установлены новые трубы и радиаторы, все стены и потолки выровнены, на полу деревянный паркет. Квартира идеально подойдет для постоянного проживания, а также в качестве рентабельной инвестиции, для сдачи в аренду.Позвоните нам, чтобы назначить просмотр! Инфраструктура: Дом расположен в оживленном престижном микрорайоне тихий центр города, в стороне от городского шума. В считанных минутах ходьбы находится галечный пляж, что позволит вам круглый год наслаждаться свежим морским воздухом во время променада по современной новой набережной, которая ведет в самый центр города через театр оперы и балета и хореографической академии. В шаговой доступности расположены школы и детские сады, супермаркеты, фитнес-клуб, кафе, аптеки, рынок ''Чайка'', спорткомплекс, стадион, бассейн. Рядом остановки общественного транспорта. Удобные транспортные развязки позволяют быстро добраться в любую часть города.Ухоженная закрытая придомовая территория, наличие парковочных мест здесь есть все для комфортной жизни. Подходит для любого расчета: наличные, ипотека, сертификаты, материнский капитал. Документы РФ проверены юристами и готовы к сделке. Профессиональное сопровождение до получения права собственности.Добавьте предложение в з
165 м2
5 / 6 этаж
Бетонные блоки
- Показать контакты
- Добавить в избранное
165 м2
5 / 6 этаж
Бетонные блоки
26 000 000
157 576 /м2
